
Il quartiere prende il nome da alcune aree che delimitavano antiche cascine della zona – chiamate “isole” e affonda le sue radici nei traffici commerciali tra la Brianza e la città di Milano: si tratta dell’Isola, una delle zone di Milano che negli ultimi anni ha riscoperto una nuova identità e si è totalmente trasformato tanto da essere considerato il quartiere “radical chic” per eccellenza, nuova meta della movida milanese. Qui in un contesto storico Vecchia Milano lo studio 23bassi ha firmato la ristrutturazione di questo piccolo appartamento. Lo spazio è quello di un’abitazione con tutte le caratteristiche di un ambiente primi ‘900, caratterizzato da un taglio razionale, una doppia esposizione e un muro portante che separa le due zone della casa.

L’intervento si è subito improntato sull’aspetto strutturale, con un consolidamento del solaio ligneo mediante l’inserimento di barre filettate inserite nel muro perimetrale e sopra collegate da rete elettrosaldata. Durante la fase di ristrutturazione, sono stati demoliti tutti controsoffitti esistenti e «ci si è accorti – raccontano i progettisti, gli architetti Andrea Roscini e Chiara Frigerio – che erano stati realizzati in incannucciato e che sotto di essi erano presenti delle travi parzialmente carbonizzate, probabilmente da un incendio in epoche passate; perciò è stato previsto un rinforzo mediante staffe in acciaio murate e accoppiate e imbullonate alle travi».

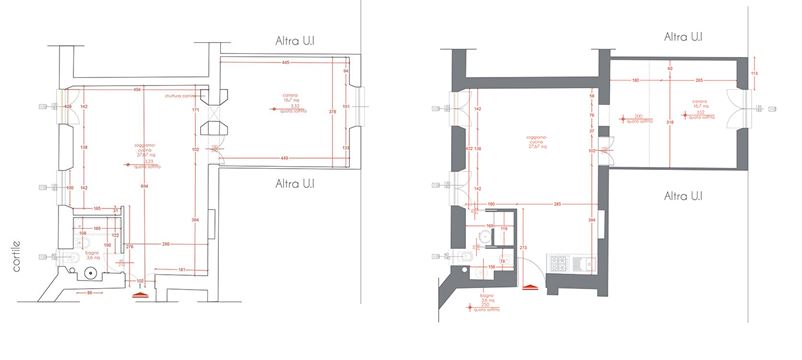
Dal punto di vista distributivo, lo spazio interno è rimasto pressoché identico, fatta eccezione per il bagno che originariamente aveva l’entrata sull’ingresso dell’abitazione. Nel progetto è stato previsto un ingresso sul lato adiacente e la realizzazione di un piccolo antibagno con una doccia annessa. Nella zona notte, grazie ad una struttura in ferro è stato predisposto un soppalco che se necessario può ospitare una seconda camera da letto.

Lo spazio interno, è organizzato in due grandi ambienti separati da un’apertura ad arco originaria della struttura e lasciata completamente aperta senza alcuna chiusura. I temi progettuali sono quelli della flessibilità e della trasformabilità: spazi con più funzioni e mobili realizzati su disegno dallo studio 23bassi.

L’anticamera nella zona notte può diventare una sorta di angolo office, grazie al tavolo da pranzo scorrevole che diventa una scrivania. Un piccolo soppalco può trasformarsi in una nuova camera da letto per gli ospiti e il bagno, avendo la doccia e un lavabo nell’antibagno, può essere utilizzato contemporaneamente da più persone. Per quanto riguarda gli arredi, si è dato largo spazio alla trasformabilità, con il grande tavolo in ferro del soggiorno che scorre orizzontalmente ed è utilizzabile in due zone della casa, la cucina che ha un elemento mobile che può diventare una panca usata come sgabello per la colazione ma anche come piccolo mobile bar spostabile e un mobile con contenitori che è anche una scala che conduce al soppalco nella zona notte.

Al tema della realizzazione degli arredi su misura si affianca anche quello del riuso e dell’impiego di elementi che vengono riadattati per nuove funzioni all’interno dell’abitazione. Così le piastrelle esagonali originali trovate a pavimento ma tali per quantità da non poter essere riutilizzate per l’intera superficie, sono state recuperate, lavate, consolidate e utilizzate per la parete della cucina e diverse assi da cantiere, dipinte di giallo e impreziosite di dettagli in mdf nero, sono state impiegate per la porta scorrevole del bagno e per il soppalco.
Un mix di idee e soluzioni che hanno portato alla realizzazione di un progetto coerente dal punto di vista compositivo e materico, contraddistinto da un comune denominatore, l’uso del colore giallo: riproposto in ogni ambiente, è rintracciabile in alcuni particolari degli arredi, nelle tavole da cantiere recuperate e riutilizzate diversamente e nel rivestimento di alcune pareti del bagno.

Durante la ristrutturazione anche gli impianti elettrici e idraulici sono stati completamente rifatti perché obsoleti e quindi inutilizzabili, come pure i serramenti che sono stati sostituiti con nuovi infissi in legno come quelli già esistenti in modo tale da mantenere uniformità con il prospetto dell’intero condominio.
La tua casa ti somigli
«Il nostro motto è: la tua casa ti deve somigliare. La tua casa ti somiglierà. Ci abiterai una vita. Non dev’essere solo bella, deve essere del tuo tipo di bellezza: lo sfondo per la tua storia. Così sarà il tuo nido, ma anche il tuo tempio di benessere, per dare dimora, alle tue emozioni e a quelle di chi ami» Andrea Roscini e Chiara Frigerio, 23Bassi
Il produttore
Un approccio multicanale
Per i rivestimenti del bagno i progettisti hanno scelto uno tra i prodotti più noti di Ceramica Vogue e precisamente la linea Interni, ovvero piastrelle in gres con superficie satinata di differenti dimensioni e colori. Ceramica Vogue negli anni ha dato vita a un sistema modulare di colori in tinta unita, formati, finiture e pezzi speciali pensato per arredare con soluzioni innovative sia grandi spazi pubblici come scuole, ospedali e piscine sia ambienti privati. «Puntando ad un approccio multicanale – spiega il direttore marketing Andrea Martelli – dialoghiamo in maniera coerente con tutti i principali attori del flusso distributivo. Tale concetto si esplica nel rispondere efficacemente alle esigenze dei nostri stake holders calibrando messaggi e strumenti. La selezione dei partner distributivi rappresenta inoltre un cardine fondamentale della strategia commerciale e marketing che ci permette di veicolare al consumatore finale i nostri valori di marca e di prodotto. Lo sviluppo di una strategia digitale perfettamente integrata con le altre azioni marketing ci consente infine di stimolare la domanda secondo logiche di “drive to store” a beneficio dei nostri partner commerciali presenti sul territorio. Inoltre la selezione dei rivenditori e, più in generale, di tutti gli attori del flusso distributivo risponde all’esigenza di avere sul territorio nazionale e internazionale degli interlocutori seri e affidabili con cui sviluppare strategie di posizionamento di marca trasparenti e premianti per entrambe le parti»
Il distributore
Innovazione continua
Per la fornitura dei materiali lo studio 23bassi si è rivolto al rivenditore Edilizia Roscini di Perugia, un’azienda nata nel 1964 che ad oggi ripropone la propria esperienza con processi innovativi e una comunicazione sempre in evoluzione per approcciare mercati e spazi emergenti. La loro vasta scelta di prodotti va dall’arredo bagno alle finiture per interni quali pavimenti, sanitari, parquet. Rita Roscini, direttore commerciale, spiega come grazie ad una continua ricerca e sviluppo, riescano a coprire anche le esigenze di qualità e spesa contenuta con promozioni e offerte aggiornate nel loro catalogo online o direttamente presso il loro store:«la nostra strategia è quella di puntare sempre più sull’innovazione di prodotti e processi attraverso le nuove tecnologie, ne è l’esempio il nostro sito di e-commerce www.ediliziaroscini.com che ci ha dato la possibilità di allargare il nostro mercato a tutto il territorio nazionale. Nel rapporto con il cliente finale, invece, cerchiamo di curare la vendita non lasciando che sia soltanto una fredda esperienza di “passaggio di proprietà” ma cerchiamo di accompagnarla assistendo il cliente nella comunicazione precisa dei tempi di consegna e installazione, nella fornitura dei dettagli tecnici, nell’attenzione alle Forme di pagamento e nell’assistenza post-vendita». Anche sull’importanza del rapporto sinergico tra progettista, fornitore, impresa e cliente, la signora Roscini si esprime a favore ritenendolo «fondamentale per la buona riuscita del cantiere in quanto se ci sono idee chiare e tutte le parti in causa sono consapevoli di quanto si è deciso in termini di materiali, dettagli tecnici, tempi di consegna, pagamenti, eccetera, si eviteranno inutili perdite di tempo o spiacevoli inconvenienti che possono portare anche al blocco del cantiere. In questi termini, – aggiunge – ritengo, debba rientrare anche la collaborazione con il produttore dei materiali stessi, il nostro fornitore, che deve essere selezionato, collaudato ed efficiente, non solo avere dei bei materiali».
L’imprenditore edile
Un rapporto di fiducia
L’impresa Edilsapi, i cui titolari sono Claudio Mondini e Fabio Licata si è occupata dei lavori di ristrutturazione. Dal punto di vista distributivo, gli interventi sono stati pochi e sono stati focalizzati sul consolidamento delle travi, sugli impianti elettrici e idraulici e sul totale rifacimento della pavimentazione. «La collaborazione con lo studio 23bassi è ormai consolidata da anni – racconta – e consiste in una relazione di assoluta fiducia e scambio. Tra noi e gli architetti c’è uno stretto rapporto di cooperazione che durante i lavori diventa fondamentale per la buona riuscita dell’intervento e per il raggiungimento di un ottimo risultato finale che soddisfi appieno il cliente».



