Emanuele Panzeri. Armonie metropolitane

Condividi
Una parete del linvingè stata attrezzata cn una cucina a vista e una zona a isola corredata di doppio lavabo e zona fuochi (foto Emanuele Panzeri)
Una parete del linvingè stata attrezzata cn una cucina a vista e una zona a isola corredata di doppio lavabo e zona fuochi (foto Emanuele Panzeri)

Il progetto per il rinnovo di un appartamento destinato ad una coppia di professionisti milanesi trasforma gli spazi, semplificandoli geometricamente e rendendoli fluidi.
Un appartamento affacciato su un’ampia ed alberata piazza del centro milanese, all’interno di un palazzo dell’inizio del secolo scorso, è stato recentemente coinvolto da un intervento di ristrutturazione seguito dall’architetto Emanuele Panzeri.

Una vista della cucina a isola di Varenna: il blocco centrale ha un piano di lavoro che ospita elettrodomestici, mensole e vani contenuitore (foto Emanuele Panzeri)
Una vista della cucina a isola di Varenna: il blocco centrale ha un piano di lavoro che ospita elettrodomestici, mensole e vani contenuitore (foto Emanuele Panzeri)

L’unità immobiliare era precedentemente destinata ad ospitare degli uffici ed era stata già oggetto di un rinnovo negli anni ’80, con una qualità della finiture e della manutenzione del tutto ordinaria e senza nessun aspetto di particolare pregio.

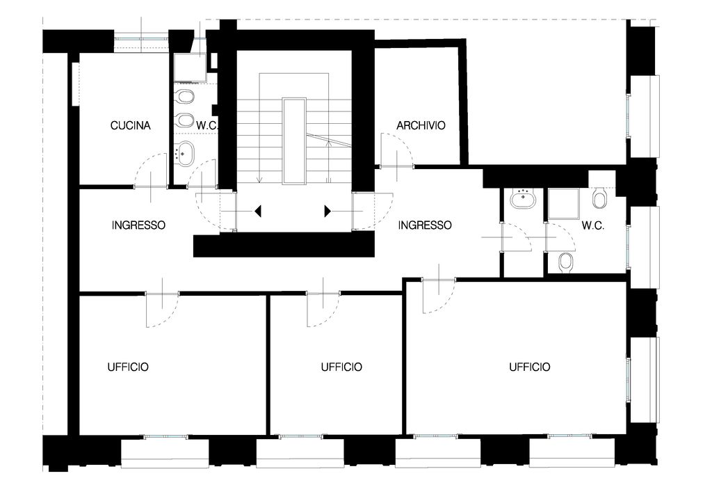
Pianta dello stato di fatto
Pianta dello stato di fatto

Gli spazi originari peraltro, si presentavano non particolarmente flessibili: una serie di piccoli ambienti con due zone d’ingresso poco sfruttate dal punto di vista funzionale. «Perduta pertanto la “qualità storica”, – sottolinea l’architetto Panzeri – l’adeguamento alle nuove funzioni necessitava di un intervento radicale di ridefinizione complessiva».

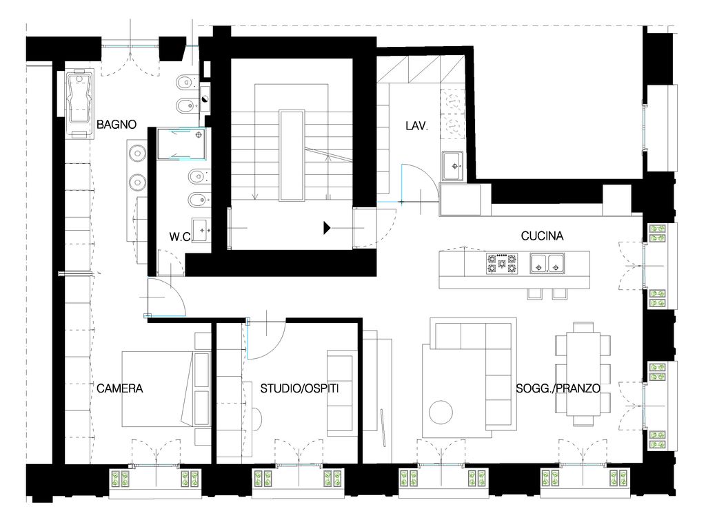
Pianta del progetto
Pianta del progetto

In fase di progetto sono stati fissati da subito alcuni punti ben precisi con un vincolo fondamentale per alcuni bisogni non derogabili: uno spazio giorno ampio ed utilizzabile per aggregare gruppi di amici, una grande capacità degli arredi, uno spazio per un ripostiglio ampio e pratico, una facilità di manutenzione e un budget limitato ed invalicabile.

Cosa è cambiato?
L’unità immobiliare, prima dell’intervento, era destinato ad ospitare uffici ed era caratterizzato da una serie di piccoli ambienti poco flessibili e da due zone d’ingresso poco sfruttate. L’intervento di ristrutturazione ha ridistribuito gli spazi privilegiando la zona giorno e creando un unico grande ambiente che ospita il living con la zona pranzo e la cucina a vista.

«La distribuzione degli spazi – spiega l’architetto – ha privilegiato quindi un ampio locale che raccoglie le funzioni del giorno e uno spazio fluido che unisce le funzioni del sonno e per la cura del corpo. Camera, bagno padronale e guardaroba si distribuiscono lungo l’asse est-ovest in un ambiente modulare che si fonde in ambiti concatenati e suddivisibili da una parete a scomparsa necessaria a garantire il buio e la riservatezza indispensabili per un buon sonno».

Emanuele Panzeri
Emanuele Panzeri

«La fluidità degli ambienti, lo scorrere tenue della luce e la semplicità geometria degli spazi sono gli elementi essenziali che hanno portato alla realizzazione di questo intervento di ristrutturazione» Emanuele Panzeri, architetto

 

Uno studiolo/camera per ospiti e un bagno di servizio, con accesso dal corridoio e comunicante attraverso la doccia al bagno padronale, completano il programma funzionale dell’intero progetto. In questo modo i due ambiti della casa si relazionano tra loro tramite un corridoio e comunicano attraverso porte in vetro che garantiscono luminosità a tutti gli ambienti.

Sul corridoio si affacciano le porte dello studio, del secondo bagno e della zona destinata al bagno e alla camera padronale (foto Emanuele Panzeri)
Sul corridoio si affacciano le porte dello studio, del secondo bagno e della zona destinata al bagno e alla camera padronale (foto Emanuele Panzeri)

«Il progetto realizzato, – precisa ancora l’architetto Panzeri – aggiunto per progressioni successive e in dialogo costante, quasi simbiotico, con la committenza, è stato condotto partendo da alcune qualità ritenute irrinunciabili quali la luce, gli spazi ampi e facilmente attrezzabili, l’ampio spazio per la cura del corpo, la garanzia per la privacy. Sobrietà e semplicità senza escludere qualità ed eleganza».

La zona relax è arredata con un grande divano a tre posti. Una serie di porte finestre affacciate su piccoli balconcini danno luce al soggiorno: sono in legno d’abete laccato bicolore con vetro camera basso emissivo prodotti da Falegnameria F.lli Giuseppe & Luigi Manenti (foto Emanuele Panzeri)
La zona relax è arredata con un grande divano a tre posti. Una serie di porte finestre affacciate su piccoli balconcini danno luce al soggiorno: sono in legno d’abete laccato bicolore con vetro camera basso emissivo prodotti da Falegnameria F.lli Giuseppe & Luigi Manenti (foto Emanuele Panzeri)

Così il ritmo, dettato dalla presenza delle finestre affacciate sullo spazio pubblico della piazza, ha suggerito un progetto incentrato proprio sulla luce, sulle aperture e sulla realizzazione di ambienti fluidi, in grado di valorizzare la luce naturale presente durante le ore del giorno nell’appartamento.

Il produttore
Debora Vella
Debora Vella

Da anni Listone Giordano, è sinonimo a livello internazionale di eccellenza nella realizzazione di pavimenti in legno alto di gamma. A parlare è Debora Vella, international marketing & communication coordinator, che spiega come questa azienda «studiando la materia legno non solo come superficie a pavimento ma come “elemento architettonico” in grado di personalizzare gli ambienti del vivere quotidiano, ha da sempre contribuito a cambiare profondamente il modo di pensare al parquet, coniugando il talento innato della natura con la genialità dell’uomo. Un riconoscimento costruito negli anni e rafforzato ogni giorno dall’impegno e dall’entusiasmo di tutte le persone che lavorano alla realizzazione di questo prodotto, mossi da un solo desiderio: la ricerca della perfezione. Sicuramente i nostri rivenditori rappresentano un fattore chiavo in questo processo, grazie non solo alla loro competenza nella vendita e consulenza ma anche ai servizi che mettono a disposizione nella posa e post-vendita. Si chiude così un ciclo virtuoso di gestione integrata dell’intera filiera: dall’albero in foresta al prodotto posato nella casa dei nostri clienti». Non da ultimo l’azienda si impegna nell’ambito della comunicazione utilizzando canali diversi, «sempre più mirati negli ultimi anni a “fare” cultura del legno ed entrare in dialogo con il mondo della progettazione». Debora Vella, responsabile marketing di Listone Giordano

L’idea di partenza è stata proprio quella di separare, mantenendo la possibilità di unire i locali con porte vetrate ed elementi scorrevoli. A disegnare gli ambienti sono stati i tagli spaziali lunghi che permettono di percepire le misure massime dell’involucro e arredi che nello stesso tempo delimitano ed uniscono gli ambienti.

Il bagno, aperto sulla camera da letto, ospita una zona attrezzata con due lavabi e una grande vasca. Una parete è interamente rivestita con la stessa carta da parati del corridoio e dell’ingresso (foto Emanuele Panzeri)
Il bagno, aperto sulla camera da letto, ospita una zona attrezzata con due lavabi e una grande vasca. Una parete è interamente rivestita con la stessa carta da parati del corridoio e dell’ingresso (foto Emanuele Panzeri)

Tutte queste caratteristiche progettuali, come ha rimarcato il progettista, sono state riprese e sottolineate anche dall’illuminazione artificiale, risolta con lunghe linee di luce indiretta e ottenute con semplici tubi eco-neon nascosti dalle armadiature, che sottolineano le dimensioni dei locali e distribuiscono in modo diffuso la luce.

Il distributore
Paolo Biffi
Paolo Biffi

Area Monza è un’azienda nata nel 1991 e che si è evoluta fino ad oggi con la consapevolezza di voler offrire un servizio “chiavi in mano” a coloro che vogliono ristrutturare, ammodernare o semplicemente personalizzare una realtà immobiliare, che sia professionale, commerciale o abitativa. «La nostra filosofia, – spiega Paolo Biffi, socio amministratore – è quella del servizio al cliente a 360 gradi. Ci proponiamo di offrire materiali e finiture di alto livello e un servizio di assistenza che permette al cliente di vivere i lavori con tranquillità. La nostra clientela è una clientela che vuole realizzare un ambiente di stile, personalizzato senza però impiegare tempo personale per la realizzazione. Per questo motivo continuiamo la ricerca di materiali sempre più nuovi e di tendenza, che presentiamo nello showroom per periodi medio lunghi». Per quanto riguarda la comunicazione operano anche attraverso proposte continue agli architetti via mail, tramite il sito internet, sempre aggiornato con i nuovi partner. «Ritengo inoltre – aggiunge sempre Paolo Biffi – che ci debba essere assolutamente un rapporto continuativo e di scambio di idee e punti di vista tra progettista, cliente e impresa fornitrice per poter sfruttare al meglio le sinergie, ma soprattutto fornire al cliente un risultato sopra le attese». Paolo Biffi, socio amministratoredi Area Monza

Strategia che ha permesso di eliminare quasi completamente corpi lampada a vista o a incasso con conseguente riduzione drastica dei costi.

Una lunga armadiatura riveste la parete che va dalla camera al bagno. Una porta in vetro collega il bagno padronale con il secondo bagno. Da qui si accede direttamente alla doccia (foto Emanuele Panzeri)
Una lunga armadiatura riveste la parete che va dalla camera al bagno. Una porta in vetro collega il bagno padronale con il secondo bagno. Da qui si accede direttamente alla doccia (foto Emanuele Panzeri)

Anche lo studio del colore ha rappresentato una parte integrante del progetto: è stato incentrato prevalentemente sulle tonalità chiare e tenui «per favorire la leggerezza della luce e su colori scuri per contrastare e delimitare gli spazi “nascosti”. I materiali utilizzati hanno contribuito alla semplificazione e a garantire i limiti di budget.

L'impresa edile
Bardhok Vocaj
Bardhok Vocaj

La società G.C.E., di cui è amministratore unico Bardhok Vocaj, ha seguito tutti i lavori di ristrutturazione all’interno dell’appartamento, lavorando sempre in stretto contatto con i progettisti e incontrandosi periodicamente in cantiere. «È fondamentale, per la buona riuscita dell’opera, avere sempre un contatto diretto con gli architetti – spiega Vocaj -. In questo intervento abbiamo dovuto prestare la massima attenzione durante le demolizioni per la presenza di tavolati appesi. Lo scarso spessore dei massetti, il vincolo di non alzarsi per non aggiungere gradini e la difficoltà nel trovare le canne di esalazione per bagni e cucina sono stati gli unici problemi riscontrati durante la ristrutturazione. Il parquet è stato posato con estrema facilità: abbiamo dovuto usare prodotti adeguati per il ripristino dei massetti, non avendo avuto la possibilità di realizzarli completamenti nuovi». Bardhok Vocaj, amministratore unico di Barhok Vocaj

Una pavimentazione in parquet rovere sbiancato di tipo prefinito utilizzata in tutto l’alloggio è stata accostata ai rivestimenti dei bagni in gres porcellanato e a pareti caratterizzate da un rivestimento in carta da parati in vinilico sulle tonalità dei grigi. Stessi cromatismi anche per gli arredi, semplici e lineari e in grado si restituire un’atmosfera equilibrata e un’armonia compositiva a tutto l’insieme. 

Richiedi maggiori informazioni

Edicola web

Ti potrebbero interessare

Toptaglio. La crescita passa da sostenibilità e riqualificazione

Toptaglio celebra oltre 25 anni di attività consolidando la trasformazione da specialista nelle demolizioni controllate a general contractor per la riqualificazione edilizia. Crescita, sostenibilità, welfare e inclusione guidano lo sviluppo dell’azienda

Anit. Efficienza energetica, il 2026 cambia le regole

Nuovi obblighi, incentivi aggiornati e criteri più stringenti per l’edilizia: il convegno Anit del 28 maggio a Bologna mette al centro le sfide del Dm 28 ottobre 2025 e le opportunità offerte dal Conto Termico 3.0 per tecnici e progettisti