Un luogo anonimo viene trasformato in un working hub funzionale e d’impatto, questo è stato l’obiettivo del designer cinese Huson dello studio One-Design Office che ha collaborato con lo studio AD Architecture diretto dal designer Xie Peihe per la realizzazione di un’ufficio all’interno dello spazio Yisen dello showroom Novacolor a Dongguan, città-prefettura della provincia di Guangdong in Cina.
La filosofia sempre più diffusa nel mondo del design in Cina è che gli uffici e le aree di lavoro devono superare i confini tra l’individuo e lo spazio che occupa, in quanto è necessario umanizzare gli interni per ridefinire la forma dello spazio ufficio.

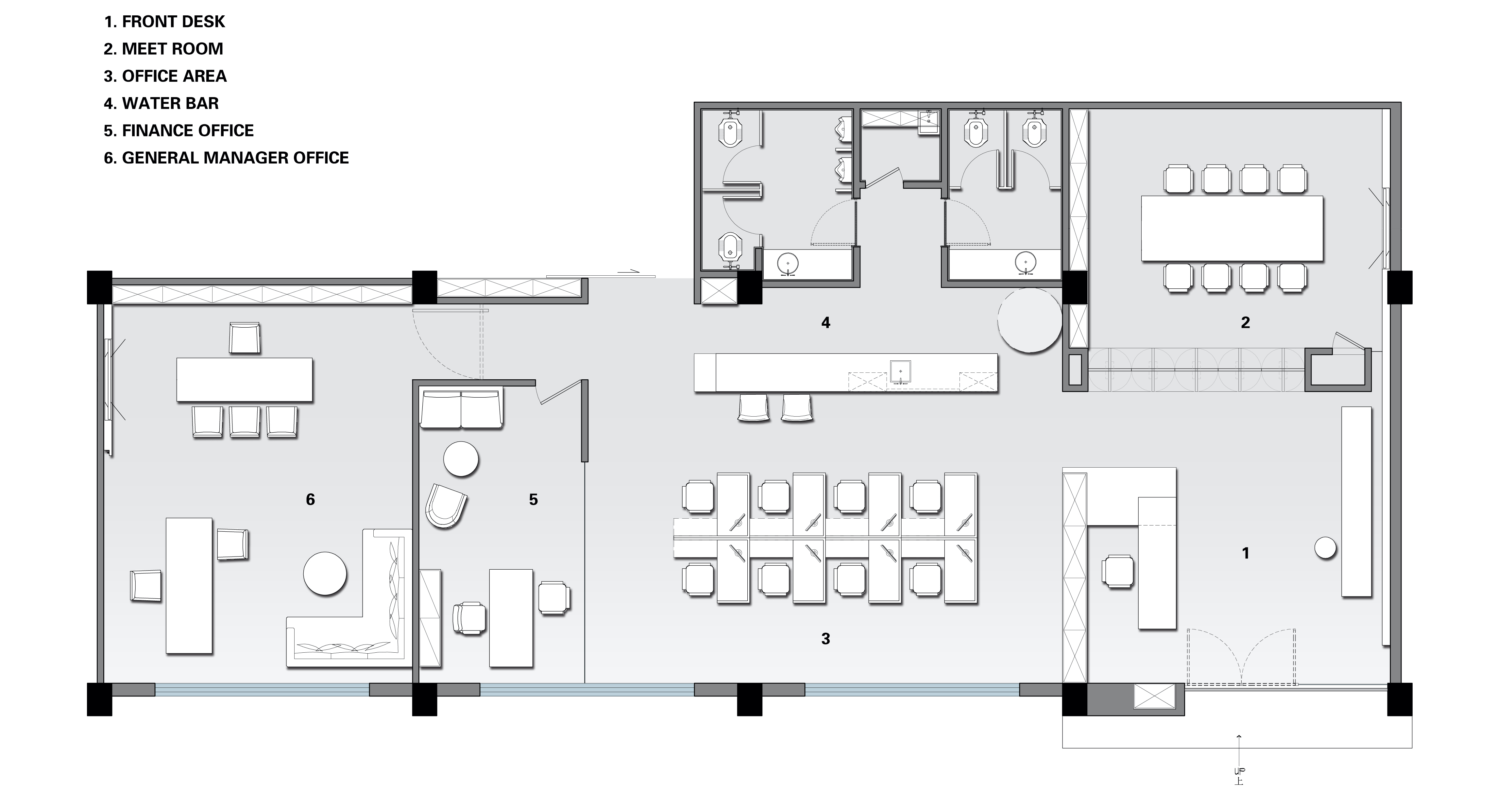
L’ufficio di Yisen, un moderno working hub, si trova in un’area a forte impatto industriale nei pressi del delta del Fiume delle Perle ed è il risultato di una riqualificazione di un’area industriale dismessa.
Con la finalità di creare un ambiente di lavoro stimolante, libero da regole, linee e contenitori, Huson ha scelto di utilizzare Wall2Floor, il rivestimento continuo per pareti e pavimenti di Novacolor. Wall2Floor è un sistema multistrato che permette la realizzazione di rivestimenti continui senza giunte e che rappresenta perfettamente il concetto di libertà che il designer intende esprimere.
Il blu del rivestimento si mescola con luci e ombre rosse, i colori definiscono lo spazio e ne influenzano la percezione, creando un ambiente vivido e dal forte carattere, composto da diversi spazi-uffici che sono al contempo indipendenti e integrati tra loro.
Un progetto che, grazie anche all’utilizzo di un prodotto versatile e contemporaneo come Wall2Floor, in questo caso reso ancora più d’impatto con la colorazione blu elettrico, ribalta le tradizioni, ridefinisce lo spazio di lavoro e trova l’equilibrio tra postindustriale e moderno.
Si tratta di un sistema continuo per la decorazione di pareti e pavimenti di natura minerale ideale per la decorazione di superfici interne ed esterne, sia orizzontali che verticali. Disponibile in cinque declinazioni – Urban, Commercial, Office, Outdoor, Wellness – in base alla destinazione d’uso, Wall2Floor è la soluzione perfetta per la riqualificazione di aree dismesse e il rinnovamento di spazi d’uso quotidiano.






