Lo studio D.Vision Architecture, composto da un team di 35 giovani collaboratori, svolge attività di progettazione multidisciplinare con particolare attenzione alla progettazione urbana e architettonica, alla progettazione esecutiva e all’ingegnerizzazione di progetto, alla progettazione costruttiva e direzione di cantiere.

Fondato nel 2015, ha da sempre sviluppato un metodo lavorativo che punta alla condivisione e al coordinamento di tutte le professionalità coinvolte in un progetto.
Per questo motivo all’interno di D.Vision Architecture è stato creato un brand operativo in grado di gestire tutte le fasi del processo seguendo la metodologia Bim denominato BimFactory.

Arch. Armando Casella | Partner D.Vision Architecture
«La buona riuscita di un’opera, oggi, passa attraverso la capacità di saper gestire una grande complessità di informazioni multidisciplinari. Attraverso una crescente innovazione dei processi gestionali abbiamo compiuto un vero e proprio salto culturale nell’approccio al progetto. L’esperienza maturata nell’utilizzo dei migliori software Bim Oriented, ci consente d’interagire attivamente con tutti i soggetti coinvolti nella realizzazione dell’opera, assumendo il ruolo di coordinatori del progetto oppure occupandoci dello sviluppo delle tre discipline: architettura, strutture, impianti. Il cliente può trovare in BimFactory un consulente che lo affianca per incrementare il proprio know-how oppure, un professionista che è in grado di erogare, autonomamente, servizi di ingegneria attraverso il processo Bim. La modellazione informativa permette di avere a disposizione una fonte di dati univoca e aggiornata su ogni aspetto del progetto e questo risulta fondamentale per una proficua e ottimizzata verificadocumentazione del manufatto da un punto di vista prestazionale, anche rispetto alle esigenze normative. Integrando il modello Bim di progetto con quello di cantiere e collegando gli oggetti alle attività del cronoprogramma è possibile simulare lo svolgersi della programmazione lavori nel tempo, verificare la correttezza delle ipotesi fatte in merito alla durata delle attività, prevedere e quindi correggere eventuali errori di pianificazione. Un modello Archicad lo si può immaginare come un corposo database centrale che permette di memorizzare tutti i dati del progetto per rendere le informazioni accessibili a qualsiasi partecipante nella filiera Bim Archicad offre possibilità che aiutano l’utente ad aumentare la propria produttività».

Software Archicad in ottica Open Bim
Seguendo la filosofia Open Bim lo studio D.Vision ha trovato nel software Archicad il partner ideale e strategico per l’attività lavorativa, grazie alle sue ottime potenzialità di scrittura e lettura del formato aperto internazionale ifc e alla possibilità di usufruire di server condivisi che permettono di seguire ogni fase della progettazione anche da remoto.
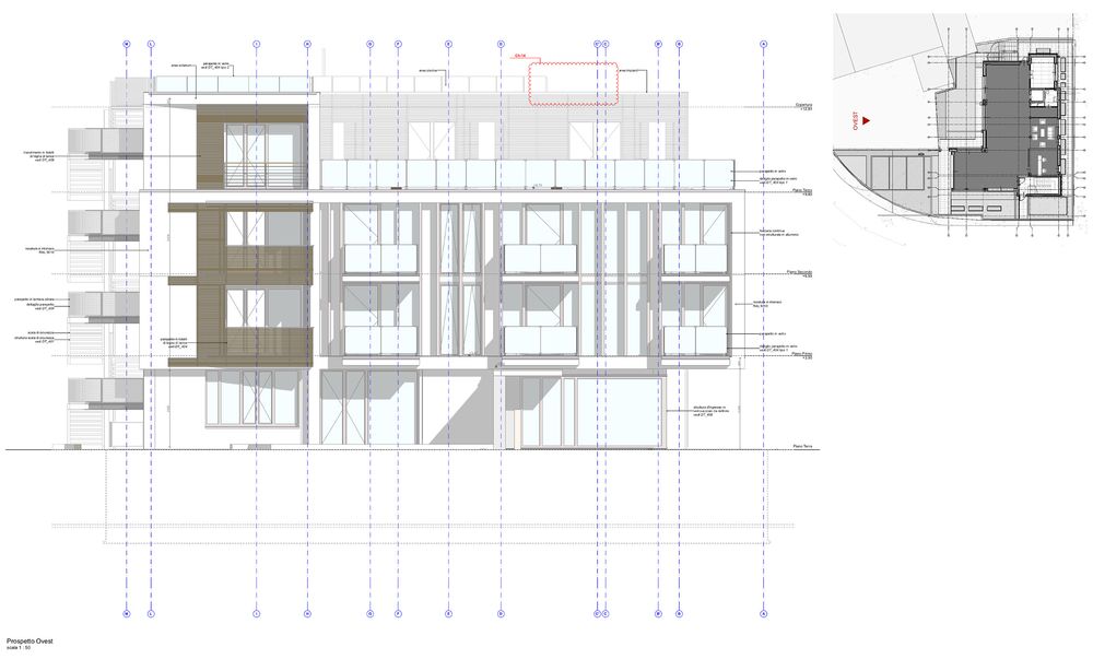
Case history: hotel Aida a Bardolino
Un esempio di approccio metodologico Bim è il lavoro condotto da D.Vision Architecture per l’hotel Aida a Bardolino (Vr) nel quale l’utilizzo di Archicad è stato particolarmente utile.

L’intervento ha previsto la completa demolizione di un edificio esistente, per una superficie di circa 2.150 metri quadrati e la ricostruzione, per circa 2.630 metri quadrati. L’impresa appaltatrice, la Irlandini Costruzioni srl, assistita dall’arch. Michele Irlandini di Bardolino, ha deciso di utilizzare il processo Bim nella gestione della commessa per una più precisa gestione del cantiere nel pieno rispetto dei tempi e dei costi preventivati.
L’esperienza di D.Vision Architecture dimostra come l’adozione di metodologie innovative e la scelta di soluzioni informatiche altrettanto all’avanguardia come Archicad possano essere la chiave del successo nella progettazione architettonica, dall’ideazione dell’opera alla sua realizzazione.
Organizzazione del flusso di lavoro
D. Vision Architecture ha realizzato la stesura del Bim Method Statement (BMS) che ha garantito una precisa e chiara organizzazione del flusso di lavoro e dello scambio informativo, necessario a perseguire un processo Bim finalizzato al raggiungimento degli obbiettivi. Successivamente la fase di modellazione Bim ha previsto la suddivisione nelle tre discipline: architettonica, strutturale e impiantistica.

Model checking
D.Vision Architecture si è occupata anche del coordinamento tra le parti attraverso attività di model checking e clash detection sia all’interno delle singole discipline sia tra discipline diverse, garantendo anche la compatibilità con tutte le altre opere complementari alla costruzione dei manufatti.
Il modello, coordinato e aggiornato con la fase di progettazione, è stato poi utilizzato in cantiere in fase di direzione lavori, per monitorare i processi costruttivi e ottimizzare costi e tempi. Nel modello sono state inserite le informazioni relative alla Wbs, e collegate quindi quelle relative alla descrizione delle lavorazioni e al prezziario.

Computi metrici estimativi e Sal
Questo ha permesso l’estrazione automatica e in tempo reale di computi metrici estimativi, capitolati, cronoprogrammi e Sal, garantendo il monitoraggio del flusso operativo e realizzativo nelle diverse fasi di lavorazione e approvvigionamento e ottenendo un modello finale as built utile per le successive fasi di gestione e manutenzione dell’edificio.




