
Il nome è la dichiarazione d’intenti del nuovo resort di lusso che ha aperto le porte al pubblico all’inizio dell’estate scorsa: Casa di Langa rincorre l’archetipo dell’architettura tradizionale locale, ne celebra i materiali e le tecniche costruttive, con l’intento di entrare a far parte del paesaggio in punta di piedi e con l’obiettivo di offrire agli ospiti un’esperienza esclusiva, dove il lusso passa attraverso la sostenibilità.
Progettato, anche negli interni, da GaS Studio in collaborazione con Parisotto+Formenton Architetti, il nuovo hotel piemontese è stato realizzato dall’impresa Malabaila&Arduino, con la partecipazione di Arcadis Italia, che ha coordinato i team di lavoro e svolto il Cost&Project Management supervisionando costantemente gli sviluppi.

«Nel progetto Casa di Langa tutti gli attori hanno compreso il valore e la portata della collaborazione.
L’intenzione è quella di continuare, in futuro, a costruire e consolidare un’eccezionale esperienza professionale e umana» André Straja, Partner di GaS Studio

Affacciato su una tenuta di quarantadue ettari coltivati a vigneti con una parte boschiva, il boutique hotel nasce dal recupero e trasformazione di una preesistenza realizzata nella prima decade del 2000 e mai terminata, con l’obiettivo di riqualificare l’architettura dal punto di vista estetico, funzionale e della sostenibilità ambientale.

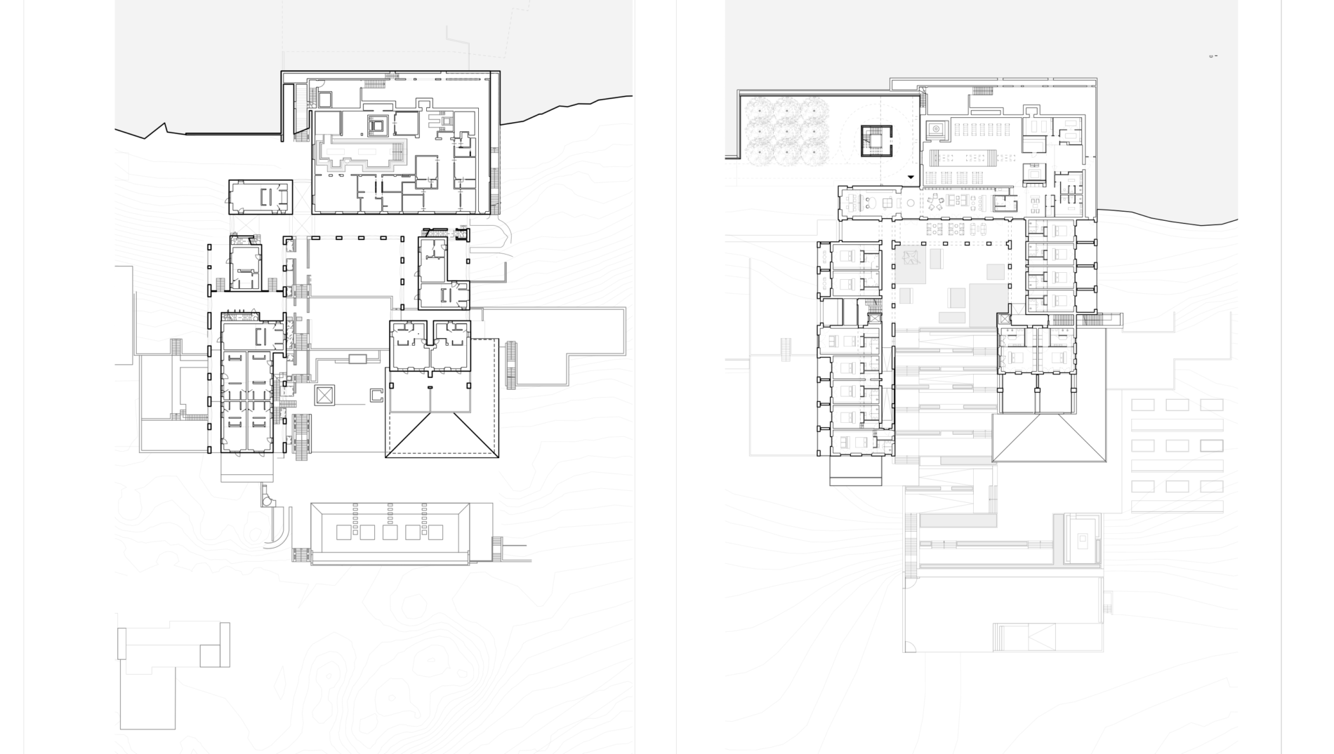
Casa di Langa nasce sullo scheletro di una struttura ricettiva iniziata all’inizio del 2000 e mai terminata. La nuova proprietà decide di affidarsi a un nuovo progetto, che ne prevede lo smantellamento nella quasi totalità. Solo un 30% circa della struttura viene salvato, in particolare i solai, alcuni dei quali vengono comunque puntellati e rifatti e realizzati ex novo. Una struttura metallica viene affiancata a quel che resta di quella esistente in c.a, demoliti i corpi scala per realizzarne di nuovi dotati di ascensore, cambiata completamente la distribuzione interna e ruotate di 90 gradi le camere. Inoltre, viene eretto l’edificio centrale, ampliato il corpo meridionale, demolite due dependance per permettere di godere della vista sulla vallata, e realizzata la spa e la piscina esterna.

Il fil rouge del rispetto del territorio coinvolge tutte le scale del progetto, da quella paesaggistica fino alla cura dei singoli complementi e gli accessori. Il nuovo corpo di fabbrica si inserisce su un pendio collinare e si articola in tre ali principali con forma a C, attorno ad un cortile centrale, concepito come un giardino digradante verso valle, con una serie di ampie terrazze.

Gli elementi compositivi come i portici, i ballatoi esterni, i tetti in coppi di laterizio, così come i materiali e le cromie richiamano la tradizione dell’architettura vernacolare locale, interpretata attraverso un approccio contemporaneo.

Dal riuso di una struttura abbandonata al riutilizzo di materiali esistenti nel sito della costruzione o alla loro re-immissione nel circuito dei fornitori locali, dalle nuove forniture di materiali locali, con massima riduzione degli sprechi, tutto il processo è permeato di una grande sensibilità nei confronti dell’ambiente.

Dal punto di vista energetico Casa di Langa ricorre all’utilizzo esclusivo di fonti di energia sostenibili al 100%, che comprendono un mix di energia solare, un impianto geotermico e fotovoltaico per riscaldamento e raffrescamento, ed energia rinnovabile certificata, con riciclio del 100% delle acque.
Il resort offre 39 tra camere e suite, una Spa & Wellness, una palestra, la piscina all’aperto, l’art garden e una villa annessa per gli eventi privati. Gli interni rispecchiamo un gusto fortemente contemporaneo, dove convivono arredi nordici e italiani di design e pezzi di artigianato locale e opere d’arte contemporanea.

La filiera delle professioni
Il produttore
Eccellenza made in Italy

I serramenti impiegati a Casa di Langa sono il modello Os 275 di Secco Sistemi, un marchio italiano che da settant’anni contribuisce all’evoluzione dell’ingegneria del serramento, inventando sistemi e profili e continuando a perfezionarli, per interpretare e realizzare progetti e tendenze dell’architettura contemporanea. OS2 75 è la famiglia di serramenti in acciaio inox che garantisce, grazie alle sezioni minime dei profili, una superficie vetrata molto ampia a parità di prestazioni. Disponibili nelle finiture corten, inox e ottone (anche brunito), sono, secondo Alessandro Pandolfo, Art & Communication manager di Secco Sistemi «Il prodotto di punta dell’azienda. Vincitori, tra l’altro, del Compasso d’oro nel 2018, sono molto innovativi e di fatto hanno dato vita a uno standard. Profili minimi, prestazioni certificate, versatilità massima a cui si aggiunge un design curatissimo che rendono questo prodotto adatto ad applicazioni ex novo e a ristrutturazioni, anche di pregio». Ricerca, innovazione, qualità ed ecosostenibilità sono i valori portanti dell’azienda che utilizza materie prime ecosostenibili e riciclabili.
Il distributore
Serramenti ma non solo
Frea & Frea è una realtà consolidata non solo in Piemonte, dove ha sede, ma in tutto il Nord Ovest. Partita nel 1978 grazie alla volontà di Giovanni Frea con lavorazioni artigianali nel settore della carpenteria metallica leggera, oggi è un’azienda che si sviluppa su una superficie coperta di 15.000 metri quadri. Mauro Frea ha affiancato il padre nella gestione dell’azienda: «Ci siamo specializzati nella progettazione e costruzione di serramenti in alluminio, facciate continue, coperture in alluminio e vetro, rivestimenti metallici, carpenteria metallica e acciaio inox e ultimamente nelle coperture telescopiche per piscine. Abbiamo anche ampliato la produzione con le macchine a taglio laser, perché è necessario restare sempre aggiornati sulle nuove tecnologie». Grazie all’ampia squadra di cui dispone, tra ufficio tecnico, produzione e posatori, l’azienda riesce a sviluppare i lavori acquisiti all’interno della propria struttura gestendo globalmente i progetti, partendo dalla progettazione alla costruzione ed alla posa in opera.
L’imprenditore edile
Un cantiere esemplare

Malabaila & Arduino è l’impresa che ha realizzato i lavori a Casa di langa. Già coinvolta nella costruzione dell’edificio preesistente, riprende in mano i lavori e si occupa delle demolizioni prima e delle costruzioni poi, come general contractor, arrivando al dettaglio delle finiture e degli arredi su misura. Una bella sfida, come racconta l’ingegner Giuseppe Glionna, tecnico di cantiere di M&A: «Per noi questo progetto aveva una doppia valenza, terminare ciò che era stato lasciato in sospeso, e realizzare un lavoro che richiedeva un altissimo standard qualitativo. Il cantiere è stato comunque sempre fluido, nonostante i picchi di 120 persone all’opera e una media di 70 operai giornalieri, grazie alla bellissima sinergia all’interno del team, dove nessuna voce è restata inascoltata». Un cantiere non semplice, dove il controllo e l’esecuzione al millimetro sono stati cruciali, ma che ha lasciato un ottimo ricordo a Glionna. I lavori sono durati due anni, compreso il fermo dovuto alla pandemia. L’eccellenza costruttiva e l’attenzione alle esigenze del cliente sono il fiore all’occhiello di questa azienda famigliare che ha saputo adattarsi alle esigenze del mercato, volgendo lo sguardo al panorama estero, con la costituzione di aziende in Francia, Svizzera e Algeria.
Progetto architettonico: GaS Studio con Parisotto+Formenton Architetti
Project management: Arcadis Italia srl
Impianti e strutture: Bre Engineering srl – Euclide
Paesaggismo: Land srl
Progetto illuminotecnico: PSLab
General Contractor: Malabaila&Arduino S.p.A.
Intonaci interni: Matteo Brioni
Intonaci esterni: Weber Saint-Gobain
Mattoni: Fornace Ballatore
Coperture in laterizio: fornace Ballatore
Serramenti: Secco Sistemi
Anno: inizio lavori 2019 – fine lavori primavera 2021
Foto: Alberto Strada
Styling: Elisa Musso



