
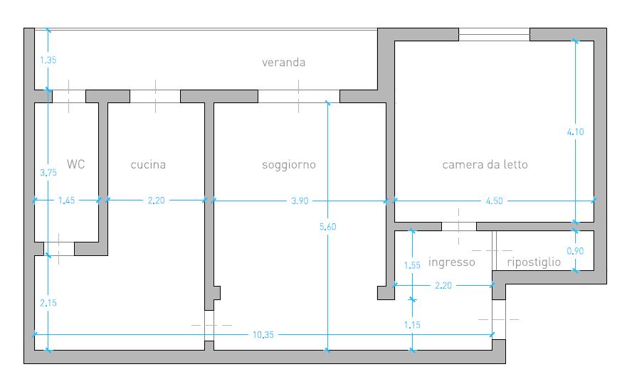
A Palermo, un’abitazione minimale e luminosa dalla pianta aperta, con spazi fluidi e comunicanti che diventano il punto di forza di tutto il progetto. Una ristrutturazione all’apparenza leggera, dal tocco delicato. Eppure, al contrario, dietro l’armonia del risultato c’è un intervento deciso di ridimensionamento degli ambienti e di riprogettazione dei percorsi. Nel centro di Palermo, un edificio anni Sessanta ospitava un’abitazione di 70 metri quadrati con ambienti ben distinti ma con inutili sprechi di spazi.


C’era un piccolo ingresso da cui si accedeva all’unica camera da letto, molto spaziosa, e a un soggiorno dalle dimensioni contenute. Da qui, attraverso un’altra porta, si poteva entrare in una grande cucina per poi accedere al bagno. Una veranda su cui affacciava la zona giorno era poco sfruttata. I proprietari volevano dire addio a questi spazi un po’ angusti per creare, invece, una casa senza inutili porte, luminosa e con spazi fluidi. L’idea di realizzare una pianta aperta con uno spazio centrale da cui raggiungere tutte le altre funzioni è stata dell’architetto Gaspare di Maggio dello studio Gda.

«L’approccio ai diversi progetti e realizzazioni è sempre accompagnato da alcune essenziali linee-guida, tra cui, l’estetica della semplicità ed economia dei mezzi, la sostenibilità ambientale dell’intervento e soprattutto la convinzione che le migliori soluzioni siano spesso da inventare. Tali elementi permettono allo studio Gda di raggiungere il corretto equilibrio fra osservazione ed intenzione progettuale, lasciando pertanto ampi spazi di relazione e coinvolgimento a partner, committenti e collaboratori». Gaspare di Maggio, studio GDa
Il progettista ha lasciato intatta la destinazione degli ambienti, così da non stravolgere gli impianti, intervenendo però sulle dimensioni degli spazi, per renderli più confortevoli e soprattutto comunicanti tra loro.

La prima cosa da fare è stata “svuotare” tutto l’appartamento e ridistribuire le diverse metrature. «Occorreva – spiega il progettista – procedere con la demolizione di tutta la ripartizione muraria preesistente abbandonando qualunque ipotesi di nuova tramezzatura. Sono stati poi eliminati tutti gli architravi, gli stipiti, le mostre, i cassonetti avvolgibili e tutti quegli elementi che determinavano una discontinuità delle superfici murarie». L’ingresso, ora, si spalanca direttamente sul soggiorno, senza barriere visive, e solo da qui si può accedere alla camera da letto, le cui misure sono state ridimensionate.

Nella nuova ridotta metratura della camera l’architetto di Maggio è riuscito però a creare anche un vano che ora accoglie una cassettiera ma che può essere trasformato in una capiente cabina armadio, sempre utile. E se la camera da letto è stata ridotta, in compenso il soggiorno si è allargato, inglobando anche parte della cucina da cui è separato da un semplice setto. Per dare uniformità a tutto il progetto, senza rischiare di creare nuovamente spazi angusti, tutte le pareti sono state tinteggiare di bianco e, a pavimento, è stato posato un parquet di rovere a listoni per tutta l’estensione della casa, ad eccezione della base della cucina e del bagno.

Come rivestimento del bagno, sono state scelte piastrelle della collezione Playground di Ergon, un brand di Emilceramica. Scelte in un sobrio color Berlin Grey, queste piastrelle sono uno tra i prodotti di punta dell’azienda che da anni promuove la cultura ceramica con la produzione e la distribuzione di prodotti Made in Italy. Debora Laterza, direttore marketing dell’azienda spiega «In Italia il mercato del rivestimento è assolutamente rilevante, considerato che il mercato dell’edilizia è fortemente concentrato sulla ristrutturazione e che l’ambiente bagno è catalizzatore di questi investimenti». Anche da un punto di vista della comunicazione l’azienda si rivela all’avanguardia «La comunicazione per noi è fondamentale, si esplicita principalmente attraverso strumenti di merchandising volti a descrivere i prodotti, a mostrarne le destinazioni d’uso, a spiegarne le caratteristiche qualitative. A seconda degli strumenti la comunicazione può essere più o meno emozionale, ma si tenta sempre di unire la componente descrittiva e tecnica con quella più suggestiva e aspirazionale. Si tratta comunque di una comunicazione principalmente dedicata al target dei professionisti del settore ai retailer che rappresentano attualmente il nostro target principale». Debora Laterza, direttore marketing Emilceramica
L’orientamento verso est delle finestre ha fatto si che la luce naturale si propaghi in tutta la casa senza ostacoli, enfatizzata dal candore della pareti. Tutti gli infissi, tranne quello del bagno in pvc per garantire l’impermeabilizzazione sono realizzati in legno laccato ad alta efficienza ed a bassa trasmittanza che assicurano il corretto apporto termico.

In una casa dalla metratura contenuta era necessario creare, dove possibile, dei vani contenitori: all’ingresso, per esempio, chiudendo la porta che dava alla camera da letto, è stato ingrandito un vano ripostiglio esistente, e nel living l’architetto ha progettato due elementi contenitori a parete in legno e cartongesso.

Per questo progetto, l’architetto Di Maggio si è rivolto l’azienda Yourlife di Palermo che ha rifornito molti dei materiali edili utilizzati. «Il concept del nostro showroom – spiega la titolare Ninni Terranova – è la realizzazione del progetto “casa” e “spazio” a partire dal concepimento, passando dal materiale edile alla fornitura delle superfici, dall’arredo bagno all’arredamento completo. Una sfida che mette insieme tutte figure professionali fino ad ora strettamente correlate ma di fatto separate e mai convergenti in un’unica location». Ninni Terranova, titolare azienda Yourlife
Un’altra richiesta dei proprietari era quella di creare una spaziosa stanza da bagno. Questo è l’unico locale dove le pareti non sono bianche ma è stato scelto un rivestimento in gres porcellanato grigio con effetto resina modello Playground di Ergon. È un rivestimento a piastrelle di grandi dimensioni posate senza fuga non solo lungo le pareti ma anche sul pavimento.

La zona doccia collocata in fondo al bagno a confine con la finestra è stata oggetto di particolare attenzione: il piatto è formato da una lastra in un materiale sintetico duttile ma altamente resistente, il tecno gel, di soli 4 centimetri per 1,50, pari alla d larghezza dell’intera stanza, con una profondità pari a 90 centimetri circa e da una lastra di vetro trasparente installata a filo e sostenuta da un braccetto angolare metallico.

Il lavabo con rubinetteria da incasso poggia su un top in legno di rovere che richiama il parquet del resto della casa, e i sanitari ceramica bianca smaltata sono sospesi. Tutto il bagno è illuminato da una luce a cascata a Led, installata a scomparsa sul soffitto.

«Per la consegna di un lavoro a perfetta regola d’arte è fondamentale un approfondito studio di progettazione che faccia da base propedeutica alla successiva realizzazione dello stesso da parte dell’impresa edile. Solamente quando la creatività della progettazione si unisce alla sapienza della creazione si realizzano opere veramente soddisfacenti per la committenza!» Santo Carini, titolare impresa edile



