
Zona Famagosta, periferia sud di Milano. Un capannone di un’ex industria farmaceutica adibito a magazzino, ormai dismesso, si trasforma in un open space per ospitare postazioni di coworking. Si tratta di una costruzione degli anni Sessanta in cemento armato, con tetti a shed ma con sezione ad arco.

La committenza, già proprietaria dell’immobile adiacente e di diversi business centres a Milano, decide di mettere mano anche al deposito, per ampliare l’offerta di spazio dedicato al lavoro. Un business in crescita e, di fatto, la scelta migliore per chi cerca sinergie e network sul posto di lavoro. È ormai assodato, infatti, che lavorare in un ambiente di coworking aumenta la produttività e la creatività, consentendo nuove opportunità di network.

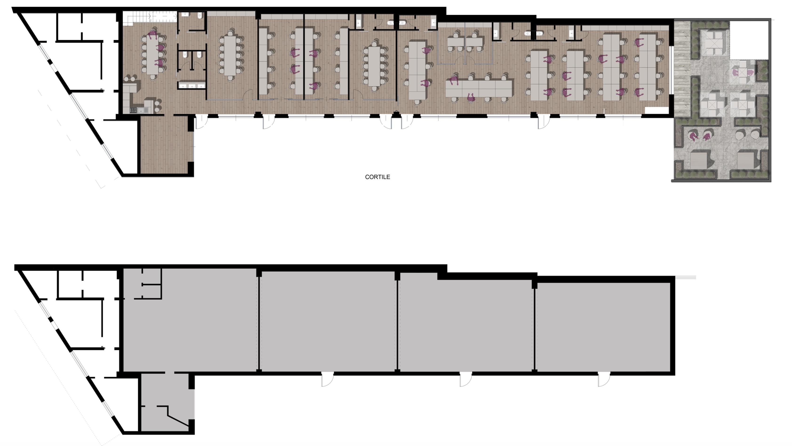
Nessun intervento di tipo strutturale nella ristrutturazione dell’ex magazzino, solo la demolizione dei setti esistenti e la creazione di nuove aperture, tra porte e ampie finestre, sulla corte interna. Demolito il pavimento in cemento, è stato realizzato un vespaio aerato con igloo e un nuovo massetto per la pavimentazione rivestita con listoni in gres porcellanato, sotto al quale passano gli impianti. Per garantire un isolamento adeguato degli spazi, è stato collocato un doppio cappotto, esterno da 10 centimetri e interno da 7 centimetri. Sono stati realizzati dei nuovi servizi igienici, e tutti i nuovi divisori sono in cartongesso. La struttura di copertura in ferro a vista è stata trattata e ridipinta.

«Grigio anglosassone fuori e bianco dentro, il progetto parte dall’idea di creare un ambiente accogliente e in linea con le nuove modalità ed esigenze di lavoro» Christian Fenouil, titolare di Chr Architects
Dal punto di vista dell’approccio architettonico alla ristrutturazione, come spiega il progettista Christian Fenouil di Chr Architects: «L’intento era di non tradire la natura dell’edificio, mantenendone integra l’architettura e regalandone una nuova identità».

Un edificio con quasi 400 metri quadrati di superficie calpestabile per 6,85 metri di altezza, illuminato esclusivamente dagli shed in copertura. Per rendere il magazzino abitabile sono state effettuate innanzitutto delle scelte funzionali: smantellato il pavimento in cemento, è stato realizzato un vespaio aerato su cui è stato costruito il nuovo pavimento, con le canalizzioni per gli impianti.

L’involucro esterno è stato rivestito da un cappotto da 10 centimetri a cui ne è stato aggiunto uno interno da 7 centimetri. Per un’illuminazione ottimale delle postazioni di lavoro sono state aperte delle finestre di grande formato sul fronte su corte, insieme a nuove porte, sempre vetrate.

Demoliti i tramezzi, lo spazio diafano è stato organizzato come un ampio open space, suddiviso in tre ambienti collegati tra di loro per mantenere intatta la visione globale: la zona con le postazioni individuali, la sala riunioni e la cucina.

Al blocco servizi esistente ne è stato aggiunto un secondo, che funge da elemento di separazione tra l’open space e la zona cucina. Il progetto è stato completato da scelte cromatiche e materiche che rispondono alle esigenze acustiche e visive, per non dimenticare che si tratta di un luogo dedicato al lavoro: «Pareti e soffitto color bianco caldo al fine di scongiurare abbagliamenti e garantire la corretta rifrazione luminosa della luce zenitale; – puntualizza l’architetto Fenouil- il pavimento invece è in gres porcellanato con morbide venature e pacati cromatismi che imitano il legno, per garantire funzionalità, durabilità e resistenza».


Il produttore
Estetica, performance ed etica
Per la pavimentazione continua del coworking milanese è stato impiegato Chic Wood di Panariagroup, una collezione in grès porcellanato a massa colorata che riproduce il legno con un’elevata cura e fedeltà ai minimi dettagli, per essere applicato sia a pavimento che a rivestimento. Alessandro Golinelli, Responsabile marketing di Panaria entra nel merito del prodotto: «La collezione si declina in cinque tonalità e presenta un’estetica molto curata nel grande formato. È un prodotto in grado di adattarsi a qualsiasi spazio e destinazione d’uso in ambito residenziale e commerciale. Chic Wood si estende anche agli spazi outdoor nelle due versioni per esterni.». Grazie all’integrazione della tecnologia antibatterica Protect, il gres Panaria incorpora Microban, un vero scudo antibatterico, che elimina fino al 99,9% dei batteri dalla superficie. Il risultato è una superficie costantemente protetta, con alte prestazioni igieniche, inalterabile da usura e dalle condizioni climatiche. Il gres porcellanato di Ceramica Panaria nasce con nel massimo rispetto dell’ambiente: «Panariagroup è l’unica azienda del settore ceramico ad avere un report di sostenibilità certificato e redatto secondo i più moderni e rigorosi standard internazionali (Gri)», conclude Golinelli. Alessandro Golinelli, Responsabile marketing di Panaria

Il distributore
Una realtà in crescita
Il fornitore del gres impiegato per pavimentare tutti gli spazi del Coworking Hangar, è Casaoikos, impresa di distrubuzione fondata nel 1946 a Busca, in provincia di Cuneo, con all’attivo cinque sedi in Piemonte e una a Nizza, sorte negli ultimi cinque anni. Lo showroom di None, il più storico, si sviluppa su una superficie di 800 metri quadrati dedicati al mondo delle superfici, all’arredo bagno e ai sanitari. Come spiega Gaetano Pino, consulente commerciale della filiale di None: «Il nostro target è il cliente finale, ma anche il professionista. Per questo lo spazio espositivo, suddiviso in aree tematiche con le ambientazioni dei prodotti è fondamentale. Puntiamo moltissimo anche sul web: siamo presenti su tutti i social e naturalmente abbiamo una pagina web aggiornata dove presentiamo le nostre referenze, i progetti a cui collaboriamo, e l’obiettivo è sviluppare al massimo questo strumento». Gaetano Pino, Casaoikos, filiale di None

L’imprenditore edile
Ristrutturazione chiavi in mano
Konstandin Zaka è, insieme al fratello, titolare dell’impresa Edil Service. Milanesi di adozione e albanesi di origine, hanno alle spalle sette anni di esperienza sul territorio cittadino, con commesse che spaziano dalla residenza agli uffici. Con cinque operai all’attivo, Edil Service si occupa di quasi tutti i lavori che riguardano le ristrutturazioni, dalle demolizioni all’impiantistica, alle opere di isolamento alle finiture. Nel progetto di Hangar Pandelli si è trovato a dover trasformare un magazzino industriale in uno spazio per uffici, dunque abitabile: «Siamo entrati in cantiere che il capannone era al rustico. Abbiamo creato un vespaio con igloo e poi realizzato gli impienati a pavimento. Ci siamo occupati anche dei cartongessi e delle pareti vetrate, che sono state create ex novo sulla corte.». Nessuna difficoltà degna di nota durante i circa due mesi di cantiere «grazie senz’altro alla gestione precisa e tempestiva del progettista» commenta Konstandin Zaka, uno dei titolari di Edil Service
Committenza: A&B S.r.l.
Luogo: Milano
Tipologia: Uffici
Progettazione architettonica e direzione lavori: Christian Fenouil, Chr Architects. Assistenza alla progettazione: Denny Vitali e Kristine Macatangay
Anno di realizzazione: 2017
Superficie calpestabile totale: 374,23 metri quadrati
Serramenti: PhiPorte
Illuminazione: Tolight



