
Un ristorante di specialità pugliesi che evoca una masseria: a Milano, un nuovo locale che guarda al sud. Basta varcare la soglia e sembra di essere entrati in un tipico locale del sud d’Italia, non solo per il profumo di panzerotti e di altre specialità pugliesi, ma soprattutto per l’atmosfera: le pareti sono rivestite in maioliche colorate, i pavimenti sono in pietra e le nicchie trattate a calce.

E tutt’intorno, gli arredi riprendono il carattere rurale delle fattorie, in ferro e legno grezzo. Il progetto del ristorante Bis, firmato dallo studio Nomade Architettura, vuole essere una evocazione delle masserie pugliesi anche se si spalanca sulle vie del centro milanese.


Il locale, prima, era un attività commerciale di lavanderia, senza bagni a norma e con due ampi spazi comunicanti, più una piccola zona chiusa utilizzata come magazzino. L’architetto Selina Bertola, fondatrice dello studio, è intervenuta con mano decisa rivedendo tutti i locali e le loro destinazioni d’uso.
«Nomade come architettura in movimento, in viaggio, come volontà di esplorazione con il forte obiettivo di segnare “punti” in diverse parti del mondo. Allo stesso tempo no-made come il “non-fatto”(ancora!), segno di tutto quello che ancora non esiste e da Nomade verrà realizzato, seguendo la forte volontà di esplorare le infinite possibilità offerte dal vivere di oggi».Selina Bertola, studio Nomade Architettura
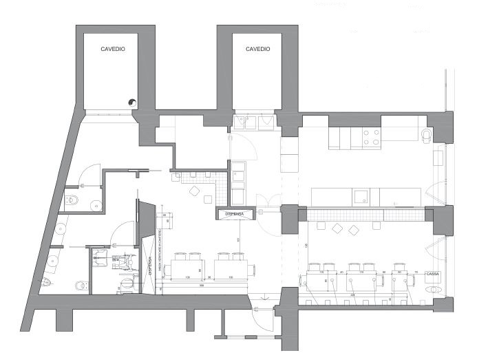
È lei stessa a spiegare che “si è interventi con un’importante ristrutturazione, innanzitutto per dotare il ristorante dei servizi necessari, in secondo luogo per riuscire a dare quell’aspetto caldo e da locale del sud a cui tanto teneva il proprietario”. L’ampio vano che si apriva con due vetrine sulla strada è stato diviso in due, diventando cucina da una parte e ristorante aperto al pubblico dall’altro.

Qui lo spazio è stato arredato con tavoli, panche e banconi dove sedersi comodamente a mangiare. Da questo ambiente si passa a un altro spazio comunicante sempre destinato a sala da pranzo. Per segnalare il passaggio da un’area all’altra ma lasciando, contemporaneamente, il senso di continuità degli spazi, la muratura è stata aperta con un arco tinteggiato di scuro.
Le piastrelle che rivestono e caratterizzano il locale sono prodotte dall’azienda di Caltagirone Made a Mano e fanno parte della collezione Novecento. L’amministratore dell’azienda, Rosario Parrinello, è anche il designer delle collezioni di ceramiche. L’azienda negli ultimi 15 anni si è portata su un alto livello artistico e produttivo di fama internazionale, creando delle forti sinergie con designer e studi di architettura. «Le nostre strategie – spiega Rosario Parrinello – si basano principalmente nel far uscire fuori dalla nostra realtà e portare a conoscenza ai nostri attuali e futuri partner le elevate professionalità e manualità che l’azienda ha nel gestire argille e pietra lavica dell’Etna, con tutte le più innovative tecniche. Riusciamo così a dare ai nostri clienti il compito di pensare, progettare e per certi aspetti far vivere a loro l’esperienza della creazione dell’oggetto del loro desiderio».Rosario Parrinello, amministratore Made a Mano

Necessario a un’attività di ristorazione era creare un’area di organizzazione chiusa al pubblico. È stata ricavata, quindi, una parte adibita a ufficio, servizi e magazzino dove predisporre le attività del personale e conservare cibi e alimenti.
Per la scelta del rivestimento a piastrelle, vera anima decorativa del locale, sono state utilizzate ceramiche Made a Mano distribuite dall’azienda Superskin. Quest’azienda milanese da 39 anni fornisce, oltre che i materiali, anche tutto il supporto possibile, tecnico e commerciale, ad architetti e imprese. L’amministratore dell’azienda, Matteo Colombo, spiega il rapporto “La nostra realtà da sempre è focalizzata in tal senso. Nella maggioranza dei casi il progettista accompagna in showroom il cliente e noi fungiamo da consulenti tecnici e commerciali, cercando di consigliare al meglio l’acquisto di un articolo piuttosto che un altro ai nostri clienti architetti e imprese edili”. L’azienda non si rivolge principalmente al grande pubblico ma “tutta la nostra strategia di marketing è rivolta al professionista”.Matteo Colombo, amministratore Superskin
I servizi pubblici, che prima si limitavano a un minuscolo vano, sono stati ricavati in un ampio spazio sul retro a cui si accede attraverso uno spazioso disimpegno. A questo lavoro di ri-progettazione degli spazi si è affiancato quello di ri-definizione degli interni. A terra sono state applicate pietre pugliesi tipiche delle architetture della tradizione locale, così da uniformare tutto il locale in una neutra tinta color sabbia.

A parete, invece, sempre a voler rievocare le atmosfere luminose e rurali delle taverne del sud d’Italia, le pareti sono state trattate a calce e in parte decorate da disegni a china di panzerotti e utensili da cucina. Parte delle pareti sono rivestite da piastrelle in maiolica decorate a mano di Made a Mano. In particolare, queste piastrelle declinate nei colori del bianco e del salvia, fanno da schienale alle panche in muratura e in legno che corrono lungo le pareti. Con fantasie e misure tutte diverse, le piastrelle sono posate con apparente casualità, così da creare un effetto “mosaico” semplice e spontaneo tipico delle abitazioni rurali. Nella parete che divide il locale ristorante dalla cucina, la muratura è stata scavata per creare nicchie e giochi di pieni e vuoti, evocando le spesse murature delle masserie.
Le nicchie, trattate a calce come il resto della parete, sono utilizzate come vani contenitori dove esporre orci di terracotta, piante aromatiche e oggetti di uso rurale. Grande è stato il lavoro artigianale per creare le atmosfere tipiche pugliesi, a cui ha collaborato l’artigiano Bernardo Palazzo di Cisternino. Particolare attenzione è stata posta anche all’illuminazione degli ambienti posizionando lampade sempre diverse che danno risalto in modo differente a ogni angolo del Bis.




