A Jesolo, a pochi passi dal mare, sta sorgendo Novaplan, un piccolo borgo progettato dall’architetto Ruggero Baldasso e costituito da nove ville indipendenti dalle prestazioni energetiche molto elevate che condividono un’ampia zona pedonale e un giardino comune di 2.300 mq. La prima di queste ville, completata pochi mesi fa, presenta una forma tetragonale per ridurre il numero di superfici disperdenti e garantire pieno guadagno solare, illuminazione naturale e visibilità verso il parco antistante.
La distribuzione dei volumi edificati sul lotto, l’alternanza delle cuspidi e la loro inclinazione sono state studiate per assicurare il pieno soleggiamento, durante l’intera giornata, delle ville retrostanti anche nei mesi invernali, mentre le facciate principali si dispongono lungo l’asse est-ovest per permettere il corretto orientamento solare di ciascun edificio.
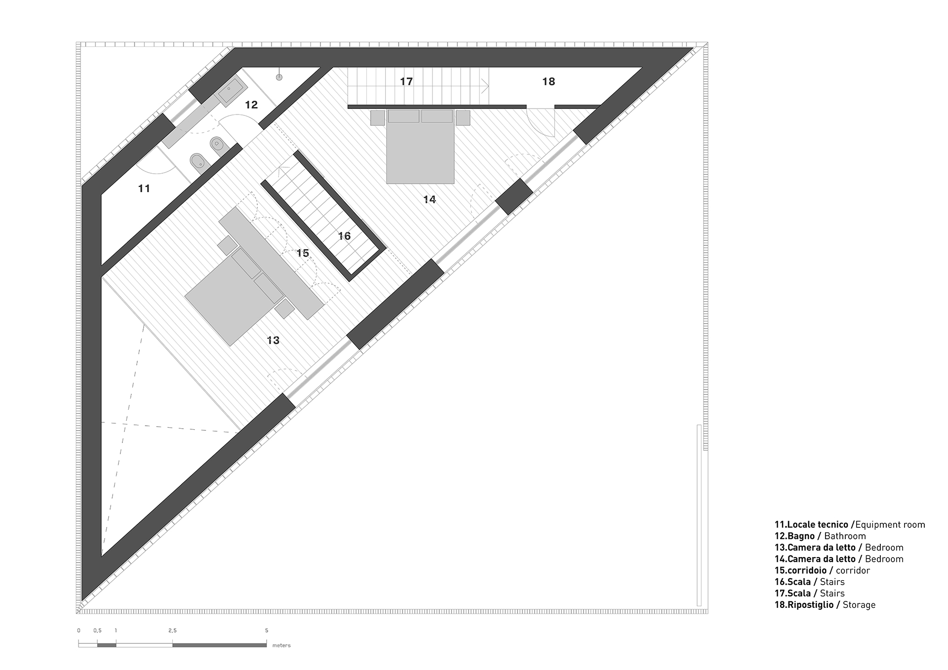
L’impianto triangolare delle case insiste su lotti quadrati formanti nel loro complesso una scacchiera. Un muro delimita, poi, il perimetro del lotto consentendo di ricavare complementarmente al volume i due spazi verdi della casa. La piena privacy e l’assenza di introspezione tra le varie unità residenziali è garantita sia dall’assenza di fori prospicenti che dai muri che, oltre a delimitare le corti, schermano alcune delle aperture.
L’involucro in mattoni della linea Classico (colore Chiaro) di Terreal Italia, che riveste non solo le pareti ma anche il tetto, garantisce durabilità, massa termica e ventilazione delle fronti, oltre che pressoché nulle necessità di manutenzione nel tempo. Le schermature a griglia delle facciate permettono l’ingresso diretto della luce solare invernale filtrando e rendendo indiretta, invece, quella estiva.

Le tipologie
Sono cinque le tipologie abitative a cui si è pensato:
- la Villa Soppalco è caratterizzata dall’uso dei soppalchi e delle doppie altezze nelle stanze più significative della casa. È dotata di solarium, chiostrina e, in alcuni casi, di portico. Rappresenta l’ipotesi costruttiva di base.
- La Villa Studio dispone, oltreché delle dotazioni standard della Villa Soppalco, anche di spazi per uno studio privato con ingresso indipendente.
- La Villa Bifamiliare si compone di un’unità indipendente a piano terra, con giardino di pertinenza, e di un’ulteriore unità ai piani primo e secondo.
- La Villa Office sviluppa l’idea alla base della Villa Studio e offre la possibilità di individuare unità direzionali indipendenti ai vari piani dell’edificio, collocandovi archivi, spazi reception e uffici.
- La Villa Triplex + Ufficio è una residenza su tre piani con giardino esclusivo che può accogliere anche un ufficio in uno spazio indipendente del piano terra.
Scelte progettuali e impiantistiche
La decisione di realizzare una casa completamente passiva obbliga a scelte progettuali e impiantistiche per le quali la maggior parte del proprio fabbisogno energetico (per riscaldamento o raffrescamento) deriva dall’irraggiamento solare, dal calore prodotto dagli elettrodomestici, dagli occupanti della casa, dalle schermature.
Per quanto riguarda le murature, l’isolamento termico è stato ottenuto con uno spessore del materiale isolante di 26 cm complessivi, collocando la gran parte degli strati coibenti nello strato più esterno della scocca in calcestruzzo, e prestando particolare attenzione alla coibentazione e ventilazione del tetto.
Inoltre, l’isolamento è stato ottenuto, come detto, anche grazie allo studio della forma dell’edificio. Strutture di volume compatto, infatti, mantengono meglio il calore rispetto a quelle dal volume distribuito o frammentato. E l’edificio progettato in questo caso ha tutta la natura di un monolite compatto.

Allo stesso modo una corretta esposizione al sole permette alle superfici più soleggiate di assorbire calore e distribuirlo all’interno. Per questo si è previsto un sistema di ombreggiature che evitasse nei mesi estivi l’eccessivo irraggiamento mentre, per le parti finestrate, sono stati usati sistemi a triplo vetro. Le pareti più fredde e con minore esposizione, invece, presentano geometrie estremamente semplificate delle superfici disperdenti e non prevedono fori.
Per garantire la continua ventilazione e circolazione dell’aria tra interno ed esterno, senza al contempo perdere il calore d’inverno o farlo aumentare d’estate, si è deciso di installare un sistema di ventilazione meccanica controllata che permette a quella in entrata di assorbire l’80-90% del calore di quella in uscita e di uniformare la temperatura nelle varie stanze della casa.
Nello specifico si è adottata un’unità di ventilazione che combina due diverse tecnologie di recupero: quello passivo, attraverso uno scambiatore a flussi incrociati, e quello attivo, attraverso una pompa di calore.
Un sistema geotermico a sonde orizzontali integrate, posto sotto l’edificio, diminuisce il carico gravante sull’unità di ventilazione riducendo i cicli di sbrinamento e migliorando la capacità di riscaldamento invernale e di raffreddamento/deumidificazione estiva dell’aria immessa.
Per coprire i carichi di picco dovuti a particolari condizioni climatiche esterne o presenza di più persone, si utilizza un’unità canalizzata integrativa impiegante un sistema di distribuzione parallelo a quello della ventilazione meccanica e il raddoppio delle bocchette di distribuzione, per favorire la migliore distribuzione dell’aria.
La macchina è dotata di opportuni filtri (categoria Coarse), grazie ai quali l’aria immessa in ambiente viene depurata di buona parte dei componenti volatili presenti normalmente nei nostri climi. A questo si è aggiunto un filtro antipolline garantendo un più elevato standard per l’aria di rinnovo (categoria EPm1 70%).
Un’unica macchina è in grado di contribuire ai fabbisogni di riscaldamento, raffrescamento e ventilazione con filtrazione dell’aria, il tutto con un ingombro impiantistico di dimensioni estremamente contenute collocato al centro della casa.
L’aggregato compatto installato si differenzia dalle macchine di ventilazione meccanica più tradizionali poiché prevede anche una piccola pompa di calore aria/aria a valle del recuperatore passivo. In questo modo, tramite opportuni sensori, la macchina è in grado di valutare se la temperatura di immissione in ambiente è in linea con le richieste, oppure se è necessaria un’integrazione. In quest’ultimo caso viene quindi attivato il ciclo in pompa di calore.
Il pretemperamento geotermico
Dal punto di vista energetico, la scelta di adottare un sistema di ventilazione che assicura il ricambio totale dell’aria senza alcun uso di ricircolo, può comportare una maggiore spesa termica quando le temperature dell’aria esterna raggiungono valori estremi sia in estate che in inverno.
Per ridurre il carico termico gravante sull’unità di ventilazione meccanica, è stato adottato un sistema di pretemperamento geotermico che utilizza l’energia contenuta nel terreno composto da uno scambiatore di calore aria/acqua di elevata superficie, collegato mediante un circolatore ad alta efficienza ad una sonda geotermica orizzontale posta sotto l’edificio.
Una centralina di controllo comanda l’attivazione della pompa in funzione della temperatura voluta in ingresso alla unità di ventilazione meccanica garantendo così un efficace pretrattamento dell’aria all’unità e riducendo i consumi.
Sistema di distribuzione dell’aria
Per la distribuzione dell’aria all’interno degli ambienti vengono utilizzate tubazioni in polietilene per uso alimentare certificate e caratterizzate da un trattamento antibatterico, antistatico, antimicrobrico e anti-alga, per garantire sempre la migliore qualità dell’aria nel tempo.
Il sistema di distribuzione dell’aria è stato inoltre validato secondo il protocollo di certificazione di salubrità ambientale Biosafe in relazione agli effetti dei componenti sulla qualità dell’aria interna degli edifici ad altissima prestazione energetica. (vb)








