Officina Progetti. La scuola materna come un “Bosco per l’infanzia”

Condividi
(foto Officina Progetto)
(foto Officina Progetto)

Il progetto della scuola materna di Santa Maria della Pieve nasce con lo scopo di sostituire la vecchia struttura esistente, ormai fatiscente e non più funzionale. Il nuovo organismo architettonico, firmato dallo studio torinese di architettura Officina Progetti, si sviluppa su circa 870 metri quadrati in un unico piano ed è stato concepito con una serie di elementi indipendenti funzionalmente composti ed aggregati tra loro, al fine di assicurare la massima fruibilità interna e, contemporaneamente, creare un movimento esterno che si propende o si ritrae a seconda della tipologia del locale.

(foto Officina Progetto)
(foto Officina Progetto)

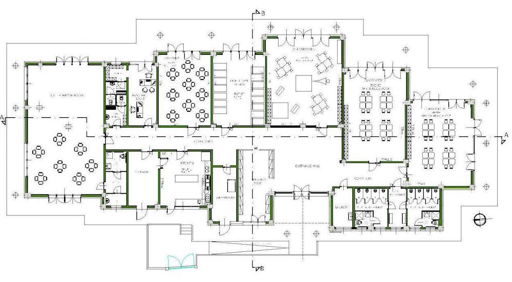
Si compone di due aule di didattica, un’aula per le attività libere, una sala refettorio ed una dormitorio, un locale cucina con annessa dispensa, un locale per la direzione didattica, servizi igienici per i bambini e per il personale, uno spazio spogliatoio all’ingresso, e si completa con una grande sala polivalente ad uso promiscuo, sia per attività parrocchiali che attività strettamente connesse all’asilo.

Atrio e spogliatoio (foto Officina Progetti)
Atrio e spogliatoio (foto Officina Progetti)

Il termine “giardino d’Infanzia”, riferito al luogo dove vengono accuditi i bambini prima dei sei anni di età, è stato spunto per riflettere da un lato sull’importanza degli spazi all’aperto e dall’altro sull’interesse del creare un ambiente interno che rispettasse un comfort ambientale il più performante possibile, adattando la progettazione alle specifiche necessità dei piccoli utenti e alle regole della sostenibilità: fra gioco e realtà si è configurato un nuovo “Bosco dell’infanzia”.
L’edificio, infatti, volutamente stringe uno stretto rapporto con il paesaggio naturale che lo circonda, trovandosi al centro di un’area verde contornata da alberi ad alto fusto, e offre un dialogo fra spazi interni ed esterni attraverso la trasparenza della sagoma, realizzata da pareti ricche di vetrate. I caratteristici decori esterni rafforzano il tema predominante del bosco.

(foto Officina Progetto)
(foto Officina Progetto)

L’importante copertura con forma ad onda, elemento caratterizzante il nuovo volume, è stata pensata e voluta come elemento di distinzione della nuova struttura, immaginata come una grande chioma verde, sostenuta idealmente da alberature metalliche e da alberi decorati. I muri perimetrali che avanzano e indietreggiano a creare movimento nei prospetti, insieme alla presenza di strutture metalliche ramificate nelle parti aggettanti del solaio di copertura, concorrono ad offrire una particolare valenza architettonica ed estetica al progetto, creando un gioco di ombre molto simili a quelle di un sottobosco. L’idea della natura ritorna all’interno della struttura, grazie ai decori a tema: le decorazioni degli interni si declinano per tipologia di utilizzo degli spazi, portando i piccoli ospiti nel mondo delle favole.

(foto Officina Progetto)
(foto Officina Progetto)

Il tema del bosco permea anche l’interno della costruzione, sia nell’atrio, dove si viene accolti da un piccolo bosco incantato, che in tutto il corridoio longitudinale della struttura, decorato con erba spinta dal vento, ad accompagnare i piccoli nei loro spostamenti quotidiani.

(foto Officina Progetto)
Aula di didattica (foto Officina Progetto)

Le aule di didattica sono state decorate con favole amate dai grandi e dai piccoli. Anche l’aula attività libere, il dormitorio, la cucina ed il refettorio sono stati decorati con motivi studiati per lo specifico ambiente.

Aula attività libere (foto Officina Progetto)
Aula attività libere (foto Officina Progetto)

Nel blocco servizi igienici, i decori con i rivestimenti in piastrelle delle pareti creano fiori, casette, nuvole, eccetera, in modo da fare proseguire la storia raccontata.
I colori delle pavimentazioni delle zone didattica e dormitorio sono stati coordinati con le decorazioni alle pareti, per cui il corridoio nel seguire il motivo del bosco presenta una colorazione in verde…come si camminasse su un prato, mentre per le aule e la sala attività libere si sono scelti colori accesi, in linea con i temi decorati. Il dormitorio ha invece colori e decori studiati per il riposo, con pavimentazione azzurra e blu e decori su pareti e soffitto in medesime tonalità.

Sezione (foto Officina Progetto)
Sezione (foto Officina Progetto)

La superficie dell’edificio in progetto è pari a circa a 870 mq, oltre all’ingombro della copertura che è fuoriuscente dalla sagoma del volume creando spazi porticati utili alla schermatura solare ed alla protezione dagli agenti atmosferici (1268 mq), ed avrà un volume totale del solo fabbricato pari a circa 3830 mc.
Dal punto di vista tecnico, il progetto si basa su un’ossatura in cemento armato, con murature perimetrali portanti, in grado di soddisfare i requisiti di antisismicità richiesti.
La struttura è pensata per soddisfare una richiesta di energia per il riscaldamento e per il raffrescamento, per una tenuta all’aria, nel rispetto del fattore medio di illuminazione diurna, confort estivo ed acustica, al fine di rispettare ed in alcuni casi a superare i valori richiesti da legge 10 e della vigente normativa.
L’isolamento a “cappotto” dell’involucro, le vetrate previste con doppio vetro basso emissivo, con la possibilità di schermature a protezione degli ambienti interni e l’attenzione alla scelta di impianti supportati da energie rinnovabili partecipano a garantire un comfort ambientale soddisfacente e piacevole per gli utenti e nel tempo un risparmio economico per la gestione della struttura.
Il sistema di riscaldamento è stato pensato a pannelli radianti a pavimento per favorire un pavimento caldo ai piccoli utenti nelle loro varie attività. La struttura è completamente isolata sia dal punto di vista termico con adeguati isolamenti sia orizzontali che verticali, che acustico, requisito supportato dagli infissi esterni in grado di soddisfare i requisiti richiesti.
Infine sulla copertura ad onda è stato posato un impianto fotovoltaico (circa 13 KW) per la produzione di energia elettrica, in grado di soddisfare le richieste della struttura.

SCHEDA
Committente
Parrocchia Santa Maria della Pieve, Savigliano (CN)
Studio progettazione opere edili e strutturali
Officina Progetti – Alberto Milanesio (Progettazione, Direzione Lavori Opere Edili e Coordinamento Generale Appalto); Gian Paolo Passera (Progettazione, Direzione Lavori Opere Strutturali) con Manuela Roatta (Progettazione, Direzione Lavori Opere Edili)
Impresa esecutrice principale
Impresa Edile – Gi.Emme Impresa Generali Costruzioni

Edicola web

Ti potrebbero interessare