(Cil 173) La chiesa cattolica di St. Marien, soprannominata «church at the sea», si trova nella città di Wangerland, sulla costa nord della Germania. Il richiamo al mare è il tema chiave del progetto, ma che si fonde con la funzione sacra dell’edificio.
Il progetto, infatti, propone una interpretazione metaforica delle onde del mare, conciliando l’obiettivo dell’integrazione dell’edificio rispetto al contesto circostante e della tensione trascendentale legata alla destinazione d’uso.


Un gioco di tensioni (tra terra e cielo) che si ripropone anche nel contrasto tra la fisicità della muratura che costituisce le pareti perimetrali della chiesa e la trasparenza della copertura; ne deriva uno spazio interno privo di relazioni con l’immediato intorno (ambiente terreno), ma in forte contatto con il cielo e la luce. Infatti, oltre all’uso di una muratura curva, l’ulteriore aspetto innovativo dal punto di vista costruttivo è la vetrata che costituisce la copertura della chiesa, costituita da un sistema a montanti e traversi, anch’essa con andamento curvilineo e concavo, che disegna una sorta di catenaria in sezione longitudinale, per seguire l’andamento dell’onda della muratura, ma che si struttura planare in sezione trasversale, appoggiata alle murature perimetrali.

Nella concezione dell’edificio tutto è giocato sulla curva, non solo in alzato, ma anche in pianta. Da un lato, la semplicità tipologica è evidente se si guarda la pianta: l’edificio in realtà parte da un tradizionale impianto dello spazio sacro centrale, a croce latina, inserito in un rettangolo, che ospita le funzioni accessorie e di servizio.
Nello stesso tempo l’uso di murature curve diventa l’elemento originale e caratterizzante: lo spazio sacro con impianto a croce viene reso curvo nello sviluppo perimetrale e assume una forma sinuosa, simile a una abbraccio alla comunità riunita; tale forma viene resa visibile dall’alto nella parte che fuoriesce dal basamento e che in sommità è completamente vetrata.
Di nuovo osserviamo il gioco dei contrasti tra la rigidezza del rettangolo perimetrale, che delimita e separa gli spazi interni rispetto al contesto (terreno), e la fluidità dello spazio sacro, che abbraccia e avvolge i credenti, proiettandosi verso il cielo.

Dal punto di vista volumetrico, questo schema geometrico si traduce in una sovrapposizione tra una base parallelepipeda, più rigida, e un volume centrale che si eleva a forma di onda. Unica concessione formale nel basamento è la piega della muratura che indica e accompagna all’ingresso della chiesa. L’onda non ha un andamento uniforme, ma prorompe in altezza da una parte, dove si colloca la «facciata» principale della chiesa, verso la strada.

La particolarità della forma dello spazio sacro centrale e della vetrata, con andamento concavo, produce effetti di luce sulle pareti interne che si modificano ogni giorno dell’anno e che vengono ulteriormente mediati da elementi di schermatura interni, costituiti da alettoni in alluminio. Anche il laterizio partecipa al gioco di contrasti: il suo colore scuro e la sua ‘fisicità’ lega l’edificio al terreno, ma la sua tessitura curva dei mattoni faccia a vista, che disegna con fluidità l’onda della muratura che si eleva, lo rende plastico e quasi leggero.

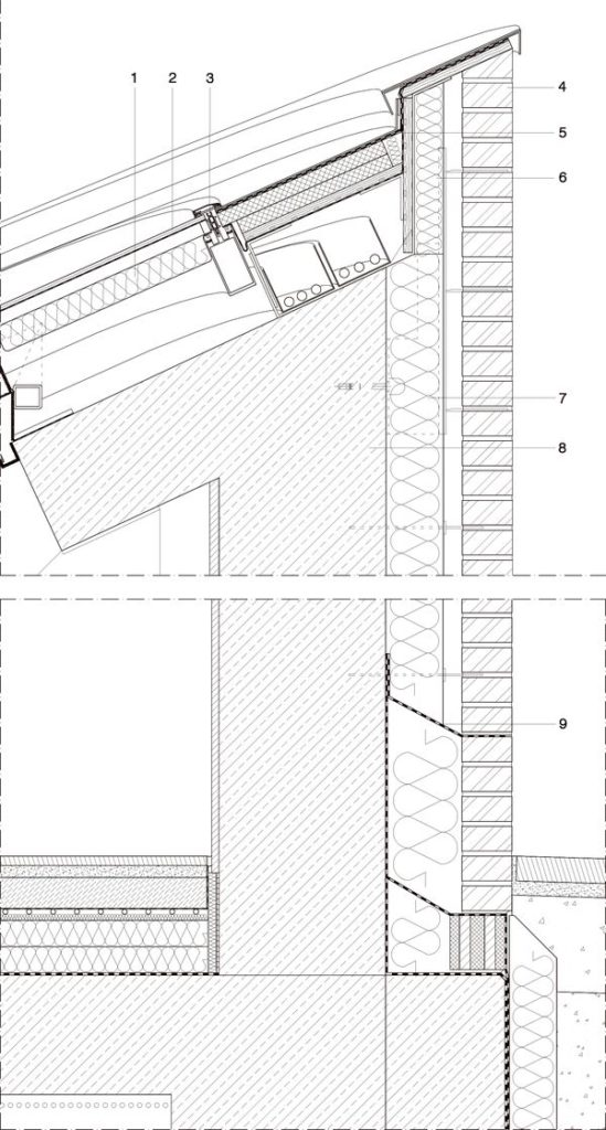
Sezione verticale in corrispondenza della vetrata della copertura e del piede dell’edificio, nella parte inferiore dell’onda.
Descrizione Dettaglio 1
La chiusura esterna della chiesa è una soluzione a doppia parete, costituita da un setto in calcestruzzo armato portante con rivestimento esterno in mattoni faccia a vista. La copertura, realizzata con un sistema di montanti e traversi, è completamente trasparente; rimane opaca solo nelle porzioni perimetrali di raccordo alla muratura.
Legenda
1. Isolante in lana minerale
2. Lastra di vetro rivestita di alluminio
3. Profilo di fissaggio
4. Mattoni faccia a vista 210x100x52 mm
5. Scossalina perimetrale
6. Profilo di fissaggio della muratura esterna
7. Isolante
8. Setto in calcestruzzo
9. Profilo di sostegno della muratura esterna
Descrizione Dettaglio 2

Sezione verticale in corrispondenza della vetrata della copertura, nella parte superiore dell’onda.
L’intero complesso è rivestito con un modello danese di mattoni faccia a vista, chiamato Oldenburg. Il rivestimento è fissato al setto di calcestruzzo armato mediante staffe in acciaio inox e connessioni metalliche, in modo da creare una intercapedine per lo strato isolante.
L’utilizzo di elementi a staffa corta ha permesso di ottimizzare la realizzazione delle pareti curve.
Legenda
1. Scossalina
2. Rivestimento in clinker
3. Setto in calcestruzzo
4. Pannello opaco
5. Profilo di fissaggio
6. Isolante
7. Isolante
8. Mattoni faccia a vista 210x100x52 mm
Descrizione Dettaglio 3

Pianta della porzione sommitale dell’edificio, in corrispondenza della parte alta dell’onda.
Il progetto gioca sui contrasti, tra la chiusura del muro perimetrale e la trasparenza della copertura, tra la rigidità del basamento e la fluidità dello spazio sacro che sporge in altezza. Tale spazio ospita nella parte bassa dell’onda l’altare, mentre nella parte alta, che costituisce il fronte principale verso strada, è ospitata, integrata nella porzione sommitale dell’onda, la torre campanaria.
Legenda
1. Setto in calcestruzzo armato
2. Doppio strato isolante
3. Mattoni faccia a vista 210x100x52 mm
4. Torre campanaria interna
5. Apertura
6. Copertura in doghe
I disegni e le foto sono stati gentilmente messi a disposizione dallo studio di architettura Königs Architekten. I disegni sono stati rielaborati da Sara Ganassali.
di Monica Lavagna professore associato,
Dipartimento di Architettura, Ingegneria delle Costruzioni e Ambiente Costruito,
Politecnico di Milano.



