
Un locale elegante e dal design ricercato, situato nel cuore di Cosenza, è il risultato di una impegnativa ristrutturazione di un vecchio magazzino che ritrova così una nuova funzione.
Il Galliano Industrial Bistrot, che prende il nome dalla centralissima via Galliano collocata a ridosso del corso principale della città calabrese, è un luogo insolito dall’aspetto molto metropolitano e poco tradizionale.

Concepito con la massima attenzione al tema del recupero, soprattutto per quanto riguarda gli arredi e i materiali utilizzati, è un locale unico nel suo genere, nel quale è possibile gustare un’ottima cena ma anche un aperitivo o semplicemente un dopocena.

«Notevole la professionalità del distributore che ci ha messo a disposizione tutta la sua competenza, facendomi affiancare da personale competente e altamente specializzato»
Paola Morrone, architetto
«L’aspetto è un po’ retrò, ma con una concezione moderna degli spazi e delle finiture; i materiali utilizzati come ferro, acciaio corten e marmo, propongono un’immagine fredda che ho voluto smorzare con l’inserimento di componenti in legno ed elementi decorativi, come i pannelli che troneggiano sulla parete di separazione, in vetro. Le vecchie porte in legno dell’area privè, malandate e recuperate dalla dismissione di un vecchio cantiere e destinate al macero, non fanno altro che evidenziare il concetto del recupero, che ha generato un ambiente moderno ma nello stesso tempo caldo e accogliente, racconta la progettista Paola Morrone».

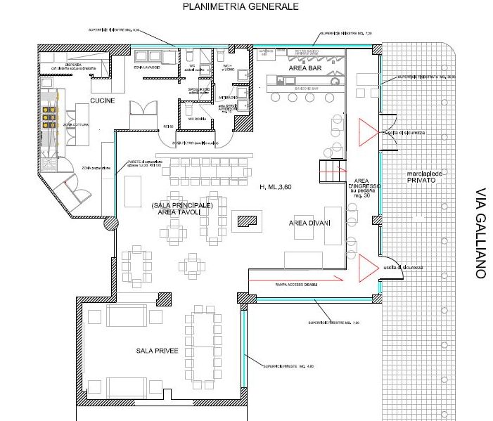
Le scelte progettuali sono state dettate principalmente dalla conformazione dei locali. Protagonista principale è un ampio salone, uno spazio che è stato interamente ristrutturato perché privo di qualsiasi servizio necessario alla realizzazione di un ristorante. Si è optato per mantenere questa conformazione di grande magazzino dal carattere industriale con tutti gli impianti a vista, direttamente connesso alle altre aree, tutte fruibili senza alcuna barriera visiva e architettonica. Anche le cucine sono a vista, separate dal resto dello spazio solo da un muretto basso e da una vetrata con intelaiatura in corten. Le uniche pareti, oltre a quelle dei sevizi (che ovviamente sono in muratura), sono i diaframmi bifacciali in corten con mensole in legno, concepite come delle librerie destinate ad accogliere, oltre ai volumi, una notevole collezione di vini.

Un progetto complesso e impegnativo per il quale l’architetto Morrone ha deciso di affidarsi per la fornitura di tutti i materiali di rivestimento, ma anche per i sanitari e altri elementi d’arredo, a Desetacasa, un nuovo showroom della zona che propone un’offerta completa di prodotti, dai rivestimenti ai pavimenti fino all’arredamento e all’oggettistica. Un interlocutore attento e disponibile in grado di offrire, oltre ai prodotti, una consulenza completa mettendo a disposizione dei progettisti anche una meeting-room attrezzata con video e tavoli riunione nella quale approfondire le scelte progettuali e poter prendere visone dei prodotti e delle diverse campionature.

«Il nostro supporto all’architetto è stato determinante soprattutto durante la scelta dei rivestimenti.
Il nostro showroom ha saputo fornire un ampio ventaglio di possibilità di grande qualità»
Ida De Seta, responsabile showroom Desetacasa
«Il cliente, che non è affiancato da un architetto, può scegliere di affidarsi ai progettisti di Desetacasa, disponibili a dare consigli e in grado di realizzare rendering e vedute 3D.
Lo spirito della rivendita è molto in linea con il mio stile progettuale, in particolare attorno al tema del riuso che mi sta molto a cuore. Per questo progetto abbiamo deciso di utilizzare per i rivestimenti le piastrelle in ceramica diamantata di Mutina, dallo stile decisamente retrò. Uno spunto interessante che ho recepito direttamente dalla rivendita è stato l’impiego del verde per interni; abbiamo inserito una parete trattata a verde verticale, realizzata con muschio naturale prodotto da Verdeprofilo, mentre le pareti non rivestite sono state dipinte con colorazioni a smalto e resine», racconta soddisfatta l’architetto Morrone a proposito del supporto ricevuto da Desetacasa, grazie anche alla grande professionalità di Ida De Rose, responsabile dello showroom.

Fortunatamente durante le fasi di cantiere non si sono dovuti affrontare particolari problemi. L’unica criticità è stata il superamento del dislivello esistente tra interno ed esterno, una serie di gradini che accompagnava tutta la facciata d’ingresso. Si è scelto di superare questa barriera realizzando un soppalco e una rampa, una sorta di affaccio dall’alto sul locale che mette in comunicazione, attraverso una vetrata continua, l’interno con l’area antistante attrezzata con tavoli e protetta da una tettoia in ferro e vetro, aggiungendo ulteriore spazio per la convivialità.

Un nuovo spazio espositivo che porta l’eccellenza del design italiano in Calabria, in un luogo nel quale gli ambienti si susseguono proponendo soluzioni sempre diverse per la casa. Uno showroom di 1.300 metri quadrati dedicati a tutti i prodotti che hanno reso Desetacasa una realtà del territorio, dalle cucine Boffi, ai divani Meritalia, dalle porte Lualdi ai rivestimenti murali Elitis, e ancora le pietre naturali di Salvatori Marmi, i complementi d’arredo Adriani&Rossi e sopratutto la parte dedicata a pavimenti, rivestimenti e arredo bagno che è stata integrata con marchi prestigiosi come Mutina, Sicis, Rex e De Castelli. Dunque dalla progettazione all’arredo, uno showroom che offre una vetrina ampia e completa sul made in Italy.



