Sostenibilità ed efficienza energetica del nuovo edificio saranno garantiti da spessori e materiali, biodegradabilità delle materie usate e tramite l’installazione d’impianti che renderanno energeticamente autonomo il nuovo complesso.
Il progetto della nuova palestra scolastica polivalente con spazi sportivi esterni, che verrà edificata in via 8 marzo dietro le scuole Mercalli e l’istituto magistrale Parini a Seregno, è stato elaborato dal raggruppamento composto dalla Società ViTre Studio srl con l’arch. Mario Bonicelli e l’arch. Daniela Tedeschi.
La nuova struttura sarà organizzata in modo da poter essere utilizzata sia dagli studenti durante l’orario scolastico sia dalle associazioni sportive che svolgono la loro attività nel pomeriggio.
L’area è facilmente accessibile pedonalmente e ciclisticamente dalle strutture scolastiche che andrà a servire, nonché dai quartieri esistenti e di nuova realizzazione e dispone di aree con ampi spazi a parcheggio. L’accesso alla struttura sarà suddiviso per competenze e destinazioni, in modo da organizzare il flusso degli spettatori e del pubblico su percorsi e zone diverse da quelle destinate agli atleti.
Il progetto recepisce le varie richieste diversificate rispetto alla molteplicità di discipline sportive che si potranno svolgere all’interno della nuova struttura multifunzionale. Rispetto precedenti soluzioni progettuali le modifiche introdotte riguardano principalmente l’ampliamento della superficie per le attività sportive, a seguito del parere Coni, la modifica dei servizi igienici e spogliatoi per gli atleti, la previsione di pozzi disperdenti per lo smaltimento delle acque meteoriche e di una nuova cabina di trasformazione richiesta dall’ ente gestore del servizio elettricità.
Sicurezza e severe norme di settore
Il nuovo complesso sportivo sarà costituito da un’articolazione di volumi, raccolta sotto la grande copertura curva in legno lamellare della palestra principale. Il volume maggiore è quello che ospita la palestra, che è stata disegnata in conformità alle direttive Coni per l’omologazione a uso palestra sportiva; verranno tracciate le linee di gioco per varie discipline (pallavolo, pallacanestro, pallamano); all’interno della palestra inoltre, suddivise dall’area di gioco da opportune barriere, trovano posto delle gradonate per gli spettatori che ospitano 400 persone (398 spettatori).
I volumi accessori ospitano la zona d’ingresso e organizzazione del pubblico (servizi igienici, area di distribuzione bevande, biglietteria…), l’area tecnica (centrali termica ed elettrica), gli spogliatoi degli atleti e degli istruttori, nonché dei magazzini per la palestra. Il progetto è stato concepito all’insegna della sicurezza e del rispetto delle severe norme di settore che regolano le materie di sicurezza antisismica, antincendio, eliminazione delle barriere architettoniche, attività sportiva, impiantistica specialistica e il risparmio energetico e gestionale.
La centrale termica troverà posto in un apposito locale riservato a tale scopo, situato al piano terra, con accesso autonomo e indipendente direttamente dall’esterno. Il progetto è stato inoltre concepito secondo i principi della bioedilizia e del recupero delle fonti energetiche rinnovabili naturali, senza trascurare tutti gli accorgimenti tecnico costruttivi atti al risparmio energetico e alla conservazione e manutenzione nel tempo dell’immobile.
Particolare cura è stata posta per la realizzazione di spazi coperti di sosta per gli utenti e di protezione delle murature dai raggi solari diretti durante il caldo periodo estivo.
L’edificio sarà dotato di sporti perimetrali che fungeranno da protezione e schermatura per le sottostanti murature perimetrali, venendo anche a creare un vero e proprio portico in corrispondenza dell’ingresso principale del pubblico. Il manto di copertura centrale della nuova palestra sarà in lastre graffate di alluminio in tinta naturale o preverniciato.
Sulle coperture laterali dell’edificio (corpo degli spogliatoi, magazzini, zona del pubblico) verrà realizzato invece un tetto piano con copertura in guaine impermeabili e ghiaino: sarà così più comodo poter accedere alle coperture per qualsiasi tipo di manutenzione.
Sostenibilità ed efficienza energetica
Il progetto complessivo prevede la realizzazione ex novo di un edificio sportivo multifunzionale, moderno e razionale. Sono predisposti ampi parcheggi per automobili, utilizzabili anche dai servizi circostanti, nonché un parcheggio per biciclette e uno per autobus, in previsione di utilizzo della struttura da parte di utenze anche non locali.
Particolare attenzione è stata posta alla sostenibilità e all’efficienza energetica controllando spessori e materiali, biodegradabilità delle materie usate e prevedendo l’installazione d’impianti che rendano energeticamente autonomo o parzialmente autonomo il nuovo complesso.
L’ingresso principale, segnalato da un ampio parcheggio per biciclette e da una bussola d’ingresso sporgente dalla facciata della palestra, ospita l’atrio per il pubblico e una serie di servizi igienici, nonché la biglietteria eventi e una saletta di distribuzione bevande.
Dall’atrio si accede direttamente alle gradinate del pubblico. L’esterno della palestra è predisposto per l’installazione di un impianto di roccia con pareti per l’arrampicata libera. Sulla parete opposta all’impianto di arrampicata trovano posto i magazzini del complesso, dotati di spazio di carico-scarico esterno e di accesso indipendente.
Scarica dettaglio esecutivo 1>>
Rilettura del tessuto urbano
La proposta progettuale ha considerato una rilettura del tessuto urbano e dei tracciati regolatori che lo hanno generato, tenendo conto e mettendo sempre in primo piano il percorso dell’illuminazione solare.
La situazione spaziale dell’area crea un nuovo ordine urbanistico e il progetto ha cercato di raccordare il presente col passato, di richiamare geometrie e tessuti urbani consolidati, introducendo nel contempo richiami alla tecnica di costruire bioedile.
Particolare attenzione è stata posta all’ambiente interno, realizzando locali molto luminosi in cui la luce solare possa entrare e essere parte attiva.
La progettazione ha cercato d’introdurre la minor volumetria possibile conservando così ampi spazi liberi e interessanti visuali sul panorama circostante. Altro elemento basilare del progetto, è la differenziazione e la separazione dei percorsi, eliminando in toto quelli carrai dai piazzali e potenziando invece gli spazi a verde alberati, i percorsi ciclopedonali e le aree per le attività sportive all’aperto.
Scarica dettaglio esecutivo 2>>
I materiali impiegati
Nella scelta dei materiali edili proposti nel progetto, sono state tenute scrupolosamente in considerazione, tutte le normative inerenti il risparmio energetico e la sicurezza degli alunni. In particolare sono state previsti:
- rivestimento, coibentazione, serramenti esterni e impermeabilizzazione delle coperture, realizzati secondo normativa vigente orientata al massimo risparmio energetico;
- serramenti in alluminio con notevole taglio termico, con vetri antisfondamento e a bassa emissività K 1.1, che consentono un notevole risparmio energetico e riducono al massimo i costi di manutenzione;
- pavimenti in mattonelle di gres ceramico, resistenti nel tempo e a ridotto impegno manutentivo, per tutte le aree degli spazi comuni, servizi, spogliatoi e corridoi;
- parapetti e scale, in acciaio elettrocolorati a polveri, con costi di esercizio manutentivo quasi nulli.
Sistemazioni interne
I pavimenti sono stati progettati in modo da ottimizzare le caratteristiche di ciascun materiale in relazione all’uso; pertanto:
- nell’atrio, gli spazi di distribuzione, nella zona del pubblico, biglietteria, centrali termica ed elettrica, area di distribuzione bevande, verrà posto in opera un pavimento in gres porcellanato formato 30×30 con battiscopa in gres;
- nei servizi igienici e negli spogliatoi verranno posati pavimenti in gres porcellanato formato 25×25 o 30×30 con battiscopa in gres cm 10×20 o in ceramica monocottura formato 20×20 con battiscopa in ceramica monocottura;
- i servizi igienici verranno rivestiti fino ad un’altezza di 2,20 m. con piastrelle di ceramica monocottura formato 20×20 cm con colore chiaro;
- la palestra sarà pavimentata in legno, con pavimento specifico per spazi sportivi in faggio evaporato, posato su appoggio elastico;
- le gradonate degli spettatori saranno in cemento armato, con finitura in resina trattata al quarzo
- le soglie di ingresso saranno in marmo.
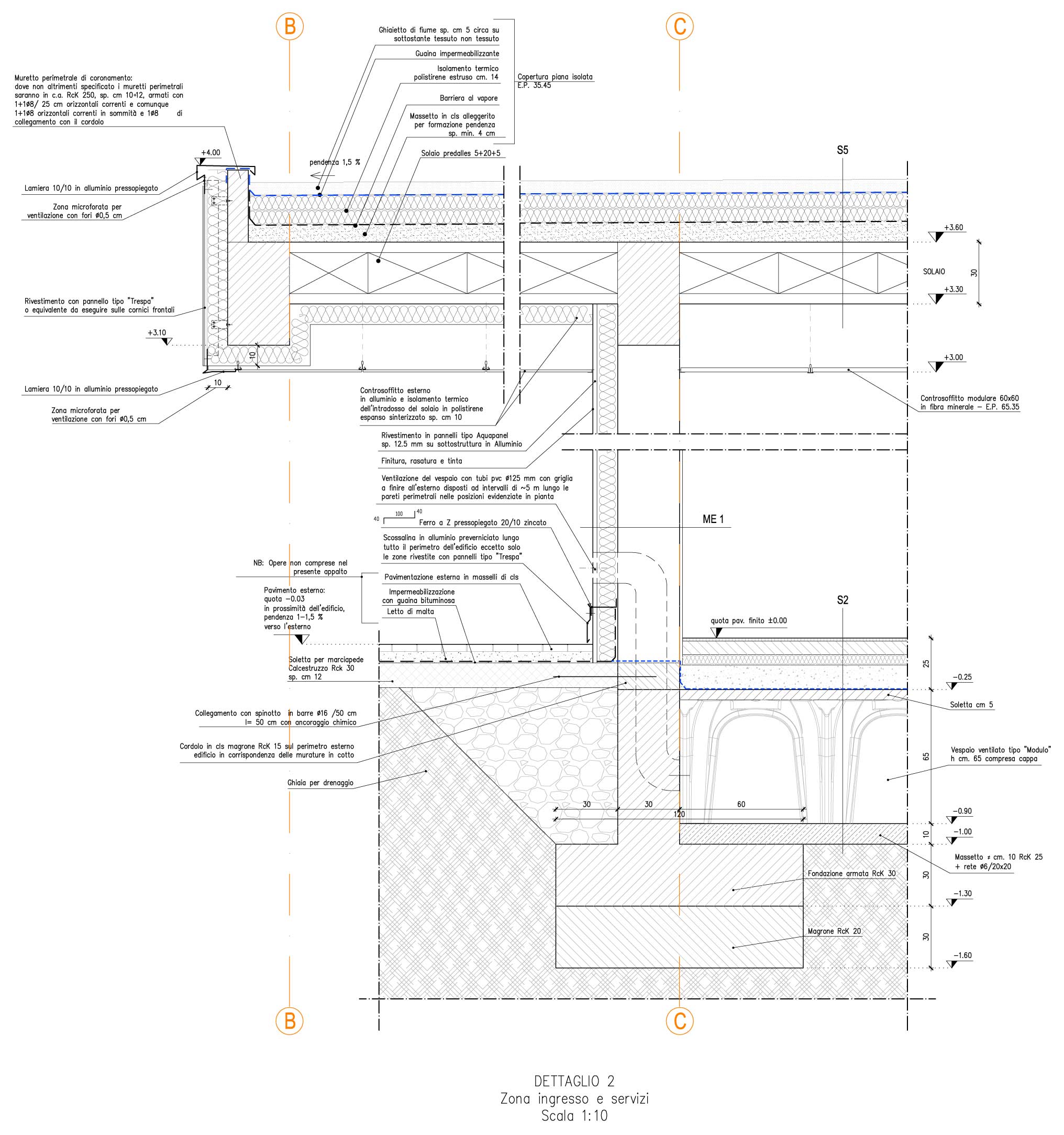
Pareti e vetrate perimetrali della palestra saranno costituite da blocchi di laterizio alveolare rivestiti. Saranno inoltre interamente dotate di cappotto esterno in lana di roccia, esternamente rivestita in pannelli di cemento fibrorinforzato tipo “Aquapanel” o equivalente, con finitura superficiale ad intonachino colorato.
In alcune zone della facciata, in corrispondenza degli ingressi principali, il rivestimento esterno sarà costituito da pannelli in fibra di legno tipo “Trespa” o equivalente, fissati su sottostruttura in profilati metallici, con strato isolante in lana di roccia interposto tra i pannelli e la parete.
I tramezzi e le rifodere saranno realizzati per la gran parte in laterizio forato, tranne per quanto riguarda le pareti divisorie delle singole unità dei servizi igienici, che sono invece previste in laminato plastico a tutto spessore, sollevate da terra ed interamente lavabili per facilitare le operazioni di pulizia e manutenzione dei servizi.
La facciata dal lato ovest della palestra sarà predisposta con un telaio in cemento armato per consentire il futuro attacco di pannelli da parete di arrampicata sportiva.
I serramenti esterni saranno realizzati in lega primaria di alluminio a taglio termico, con vetratura basso emissiva di sicurezza costituita da due lastre di vetro stratificato antinfortunistico del tipo ad isolamento acustico maggiorato tipo “Stratophone” o equivalenti.
Le finestrature saranno fisse se collocate ad altezza dal pavimento inferiore ad 1 m; le ante apribili saranno dotate di meccanismi per l’apertura ad anta-ribalta. Intonaci e pitture delle pareti non perimetrali della palestra saranno realizzate con intonaco a grezzo e fino, costituiti da strato al grezzo in malta bastarda tirata a frattazzo e finitura di calce spenta, tirata a panno, dello spessore complessivo di cm 1,5 circa.
Nello stesso modo saranno trattati gli spogliatoi, l’area per il pubblico e i divisori e le superfici interne delle pareti perimetrali. Le pareti interne, sia perimetrali che divisorie, verranno tinteggiate con pitture traspiranti semilavabili acriliche.
Controsoffitti e rivestimenti
I soffitti della zona d’ingresso principale verranno controsoffittati con lastre modulari in quadroni 60×60 di fibre minerali tipo “Armstrong” o equivalenti su orditura metallica in vista; le canalizzazioni dell’ impianto elettrico saranno poste sopra i controsoffitti, mentre quelle per il trattamento dell’aria saranno collocate in prevalenza nelle zone destinate a servizi igienici.
Le aree dei servizi igienici saranno controsoffittate con elementi in cartongesso. Il portico esterno sarà controsoffittato mediante quadrotti di alluminio modulari di dimensioni 60×60 cm, smontabili e verniciati esternamente a superficie liscia, applicati su struttura metallica portante e fissati al soffitto con pendini metallici regolabili, con interposti pannelli di polistirene per l’isolamento termico.
Impiantistica
Gli impianti della nuova scuola seguiranno la filosofia progettuale riassunta nei seguenti punti.
- L’acqua calda per usi sanitari verrà fornita nel limite del 56,5 % mediante pannelli solari;
- la palestra sarà dotata di ricambio d’aria forzato limitatamente a spazi comuni ed aule al fine di consentire una classificazione dell’edificio in classe B;
- la protezione antincendio dell’edificio consisterà in una rete di distribuzione ad anello esterna al fabbricato, completa di protezione interna a naspi ed attacco motopompa Vv.Ff;
- il risparmio energetico sarà conseguibile anche a livello di impianto di illuminazione sia con una corretta scelta delle sorgenti luminose, sia con una gestione intelligente del sistema saranno previsti vari livelli di illuminamento che consentiranno di avere anche una gestione flessibile dell’impianto;
- l’impianto di illuminazione di sicurezza sarà realizzato con un sistema Ups centralizzato che consentirà una maggiore facilità di manutenzione ed una maggiore efficienza del sistema;
- l’impianto di diffusione sonora con funzioni antipanico garantirà agli utenti la sicurezza di un comando generale di evacuazione in caso di pericolo;
- l’edificio sarà dotato anche di impianto antintrusione e di impianto rivelazione fumi;
- l’illuminazione esterna consentirà di apprezzare l’architettura dell’edificio e di rendere sicure le aree di accesso e limitrofe.Scarica sezioni >>
Scarica prospetti sud e nord >>



