
Rispettare il passato per guardare avanti. Una ristrutturazione romana aggiorna un appartamento su due piani, lasciandone intatto il fascino classico ma ripensando spazi e funzioni. Nel quartiere più avveniristico della Capitale, l’architetto Nicola Auciello dello Studio NA3 ha ristrutturato un doppio appartamento all’interno di un edificio degli anni Cinquanta.

Siamo all’Eur, quartiere nato come territorio di sperimentazione, da quando, in occasione dell’Esposizione Universale che si sarebbe dovuta tenere nel 1941, è stata creata questa città nella città, capace di coniugare modernità e classicità dell’architettura romana.


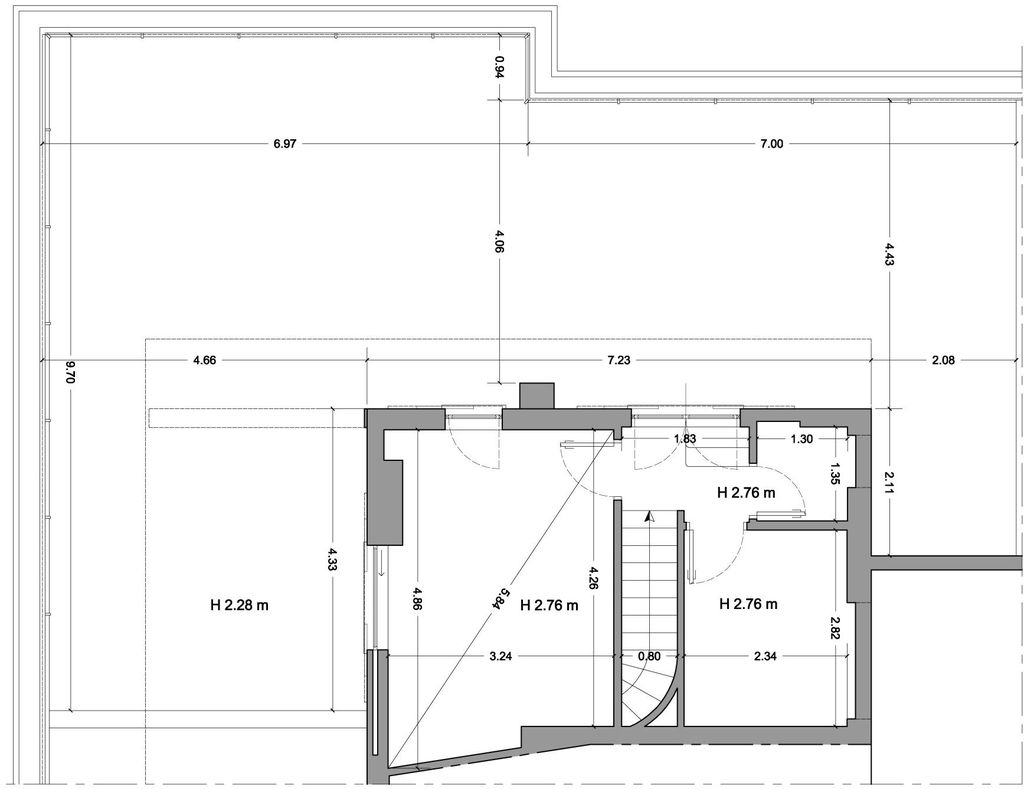
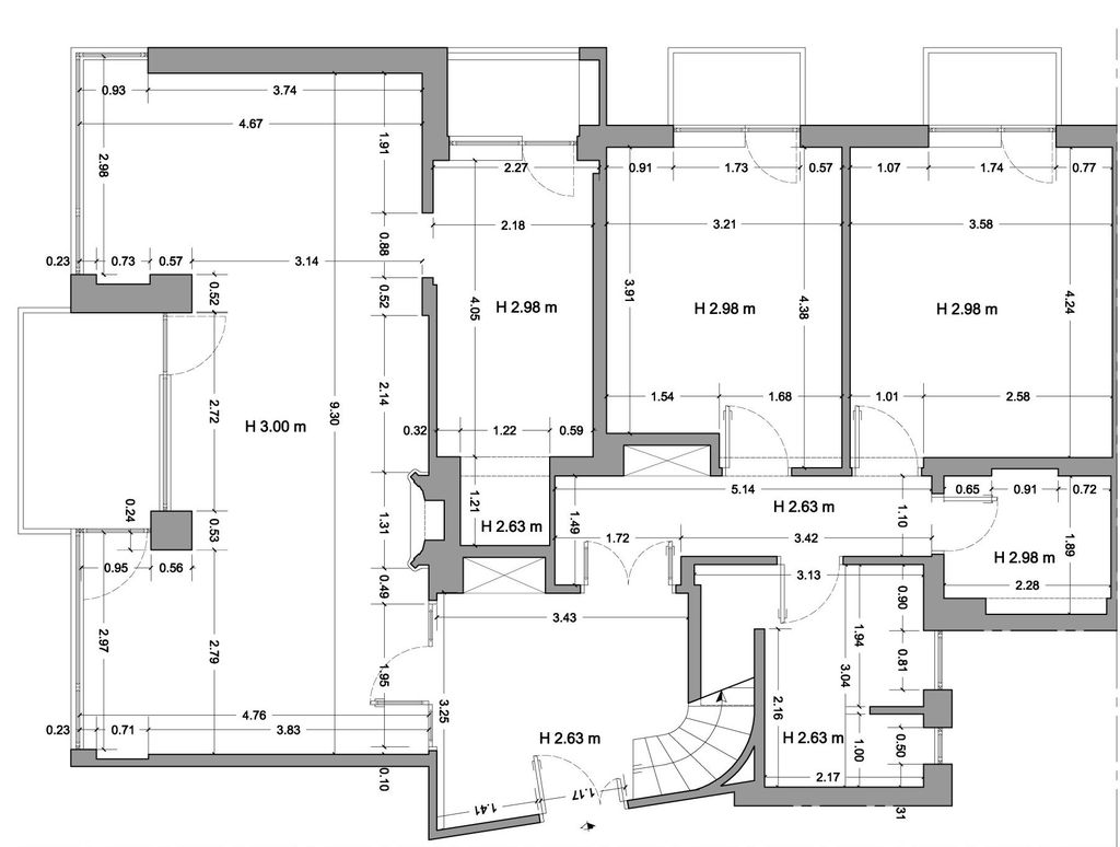
Risponde ai rigorosi canoni estetici e stilistici di quegli anni anche l’edificio che ospita questo duplex dal taglio borghese, distribuito su due livelli, un attico e un superattico, per una superficie di circa 150 metri quadrati.

«La contemporaneità di questa casa è data non solo da aspetti tecnologici celati, ma dalla teatralità: quest’ultima intesa come sistema di metafore, come accade nella tecnica di ribaltamento della situazione scenica attraverso piccoli gesti o parole.
Qui, al pari di gesti e parole, sono i dettagli che unendosi prendono vita, per creare il racconto». Nicola Auciello, Studio architettura NA3
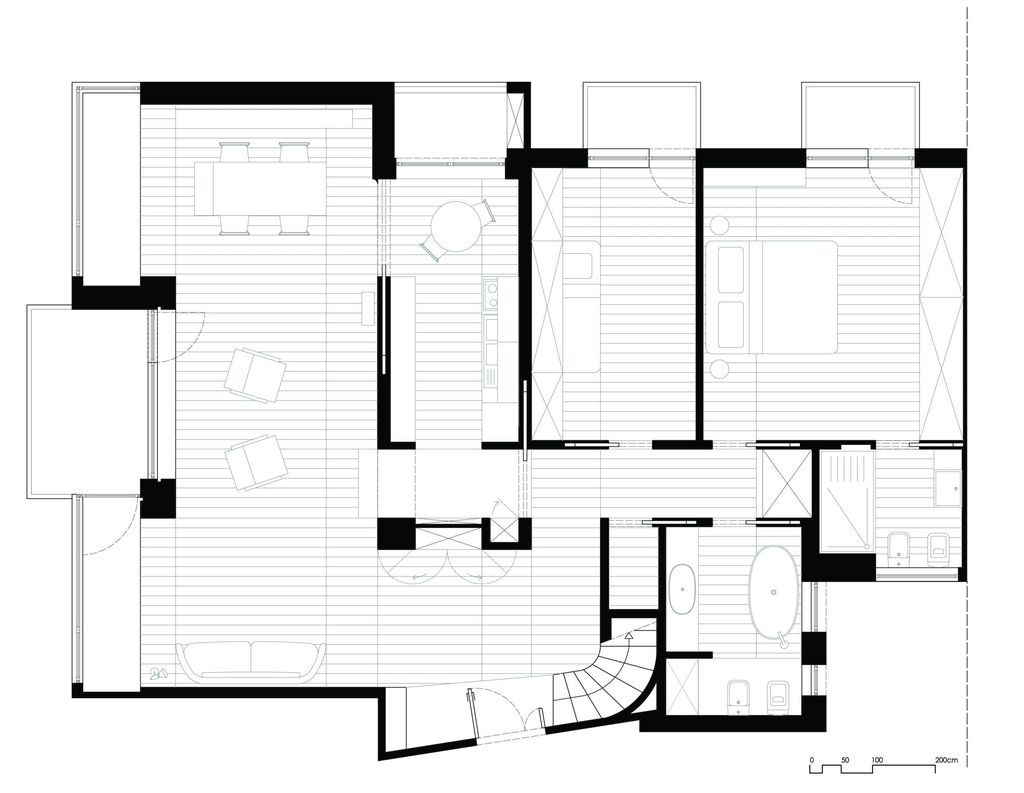
L’architetto è intervenuto prima di tutto sulla ripartizione degli ambienti che, a causa di superfetazioni avvenute nel tempo da parte dei precedenti proprietari, risultava poco funzionale e troppo angusta. Il nuovo progetto ha reso più fluidi i percorsi e ha ridistribuito i servizi, aprendo l’ingresso sulle zone giorno e notte. È lo stesso architetto che spiega come «Il rispetto dello spazio quanto più vicino all’originario – ove possibile – è stato l’incipit del progetto. Non solo, ma fondamentale è stata anche la scelta di un segno contemporaneo capace di colloquiare con l’Eur e con la storia, tramite alcune delicate scelte progettuali e l’accentuazione di una serie di contrasti materici e formali».

I contrasti non si sono limitati ai materiali utilizzati: tutto l’appartamento gioca sulle contrapposizioni tra passato e presente, elementi vuoti ed elementi pieni, geometrie rette e geometrie curve, luce e ombre. Tutto, a partire dall’ingresso. Qui infatti si incontrano subito i due elementi più caratterizzanti della casa: una scala e un vano guardaroba. La scala che conduce al piano superiore è originaria degli anni Cinquanta, resa ora più attuale con il semplice inserimento di un passamano in metallo bianco.

Alla base della scala un profilo nel tipico color azzurro vintage segue l’andamento della parete sottolineandone la curvatura con un effetto di contrasti tra linee rette e linee curve. Un altro elemento tipico degli ingressi di quell’epoca era il guardaroba, un vano che conserva le ante rivestite in stoffa: ora è stato ridimensionato mentre la parte bassa è stata aperta verso la cucina e sfruttata come vano per stipare la legna.

Per intervenire sull’esistente lo studio NA3 ha collaborato attivamente con l’impresa edile Best Costruzioni e con l’azienda fornitrice dei materiali Lozzi, con cui c’è stata una stretta sinergia. È la stessa titolare, Daniela Lozzi a raccontare che «quando lavoriamo a una ristrutturazione, il nostro intervento consiste nello studiare il progetto che l’architetto ha eseguito e fare con lui la ricerca dei materiali più idonei alla tipologia del locale e soprattutto adeguati al gusto del cliente. In questo caso abbiamo fornito pavimentazioni, rivestimenti di bagni e cucina, sanitari, rubinetterie, termo arredi, mobili per il bagno».
I rivestimenti, in questo appartamento, hanno avuto un ruolo fondamentale in ogni ambiente. Basta varcare la porta di ingresso ed è subito evidente la presenza di una sorta di tappeto in gres, una prosecuzione della scala che diventa pavimento per poi trasformarsi in una panca.

Il gres è utilizzato come elemento che segna il raccordo degli interni con l’esterno: riveste infatti non solo i balconi, ma anche le pareti e parte delle pavimentazioni sottofinestra del soggiorno e i gradini che portano ai terrazzi. «Il gres – spiega lo stesso progettista – si coniuga con una pavimentazione in rovere cotto e con tre finiture diverse nelle zoccolature, a seconda degli ambienti e necessità: a filo bianco opaco quasi ovunque, a filo turchese pastello a sottolineare la scala, a sguscio lucido dove sono state posizionate le porte a scomparsa».





