
La famiglia cresce e con lei le esigenze e la necessità di spazi più ampi, condivisi e non. Per trovarli, i proprietari di questo appartamento situato in un palazzo del centro di Milano non hanno dovuto fare molta strada: l’occasione si è presentata proprio all’interno del condominio dove abitavano e dove si era liberato un duplex all’ultimo piano.
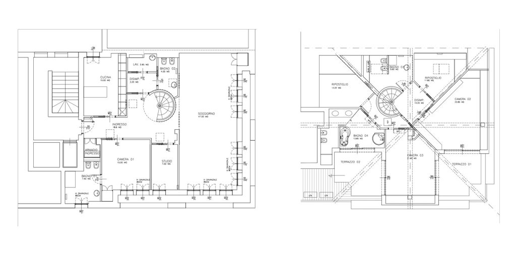
È stato un colpo di fulmine, 230 metri quadri distribuiti su due livelli, luminosissimo. La sfida delle due progettiste di Interno3Architetti, chiamate a ridisegnarne gli spazi, è stata quella di rispondere alle esigenze funzionali ma al contempo di realizzare una casa contemporanea, armonizzando la diversità delle richieste stilistiche di tutti i cinque membri della famiglia. Tra i must la creazione di una zona giorno ampia e conviviale con cucina a vista, tre camere per i figli più uno studio/camera per eventuali ospiti e servizi separati.

Le progettiste

«La sfida è stata quella di trovare un filo conduttore che unisse le esigenze stilistiche di tutti i membri della famiglia. Equilibrio, armonia e luce diventano elementi costitutivi dello spazio abitativo». BEATRICE LUPIERI e ANA CARAZO di Interno3Architetti

Rimossi completamente i rivestimenti preesistenti che risalivano agli anni della costruzione dell’edificio, al primo livello è stata modificata parzialmente la distribuzione per ampliare la zona giorno che accoglie la cucina a vista e ricavare uno studio, mentre al piano superiore si è reso necessario uno sfruttamento più razionale degli spazi, tenendo conto che si tratta di un sottotetto, ricavando tre ampie camere con due servizi e generose zone dedicate alle armadiature.
La scala a chiocciola che unisce i due livelli è stata mantenuta ma rivisitata: parzialmente aperta sulla zona giorno, è stata rivestita con cartongesso stondato e parquet.
Le porte filo muro battenti sono state scelte per la particolare caratteristica della strombatura a 40° su uno dei due lati: «Abbiamo potuto trattare la parete come un elemento di design completo, grazie all’uso della strombatura delle porte che rileva la consistenza dello spessore murario e accentua la plasticità dello stesso in perfetta consonanza con il movimento della scala» commentano le progettiste.

Se alla quota inferiore trovano spazio la zona giorno, lo studio e la camera della figlia adolescente con doppi servizi, al piano superiore si accede alla zona notte attraverso un minimo disimpegno illuminato da una finestra da tetto con la camera padronale e il bagno di pertinenza, e alle due stanze dei bambini con un secondo bagno in condivisione. Il sottotetto, caratterizzato da quattro travi mantenute a vista, viene dunque sfruttato al millimetro: la zona perimetrale corrispondente a un’altezza non abitabile viene destinata a cabina armadio o armadiatura.

L’abitazione rispecchia la volontà della padrona di casa di mantenere uno stile fresco e contemporaneo, con una predilezione per lo stile vittoriano, che si traduce in una carta da parati floreale nella camera padronale, e invece più newyorkese nei servizi in black and white. Ogni stanza da letto è contraddistinta da un colore.

La ricerca di soluzioni per rendere omogeneo lo stile della casa ricade sul parquet di legno chiaro che riveste le superfici orizzontali e sul bianco delle pareti e delle porte, per accentuare la sensazione di luminosità. Il progetto illuminotecnico, particolarmente curato, affianca agli apparecchi tecnici integrati nei controsoffitti dei corpi illuminanti di design particolarmente scenografici.



Il duplex si trova all’interno di un palazzo costruito negli anni Novanta. Il rifacimento ha interessato tutte le superfici, gli impianti e in parte la distribuzione, che risalivano all’epoca della costruzione. Demoliti i rivestimenti esistenti, realizzati i nuovi setti per rendere più funzionali gli spazi e creare una zona giorno integrata con la cucina, l’intervento si è concentrato sul rifacimento degli impianti di riscaldamento (a pavimento) e raffrescamento (canalizzato nei controsoffitti) scorporandoli dal condominio, e sui rivestimenti: parquet a pavimento, gres nelle zone umide con qualche incursione delle carte da parati. I terrazzini sono stati rivestiti con doghe per esterni. I serramenti esterni sono stati sostituiti al piano superiore e mantenuti al piano inferiore, mentre la caratteristica scala a chiocciola, in precedenza inserita in un vano di vetrocemento, è stata aperta e rivestita parzialmente con lastre di cartongesso stondato e legno nelle pedate.

La filiera delle professioni
Il produttore
Il telaio come elemento di design

In tutte le stanze del piano superiore e in alcune di quello inferiore sono state installate porte e telai Eclisse 40 Collection. Fabiana De Luca, responsabile marketing di Eclisse commenta così il progetto realizzato: «Siamo grati di aver potuto fornire una soluzione innovativa come Eclisse 40 nella ristrutturazione realizzata da studio Interno3Architetti. Il merito va ai progettisti che hanno saputo interpretare la potenzialità estetica di questo prodotto e sono stati precursori di un uso architettonico del vano porta.
Fondamentale è stata anche la consulenza e il supporto di Tea Costruzioni che ha seguito la vendita e la posa dei nostri prodotti in maniera eccellente». FABIANA DE LUCA, Responsabile marketing di Eclisse
Il distributore e imprenditore edile
Obiettivo: espansione

Per il progetto del duplex milanese impresa e rivendita coincidono: Tea Costruzioni Generali è un’impresa fondata nel 2009 da Vincenzo Porcelli dedicata alle ristrutturazioni di abitazioni chiavi in mano e a tutt’oggi questo resta il core business. Si distingue infatti per la completezza dei servizi offerti che vanno dal progetto alla realizzazione dell’intervento di ristrutturazione. Con gli anni il campo d’azione si è ampliato alle facciate e alle collaborazioni con le agenzie immobiliari, ed è del 2019 la decisione di “mettersi in vetrina” con uno studio-ufficio e un piccolo showroom in centro a Milano. Recentissima la scelta di ampliarsi ulteriormente per dotarsi di circa 250 metri quadri di spazio espositivo, dove i clienti possono toccare con mano un’attenta selezione di prodotti e materiali: le proposte abbracciano due, tre aziende per tipologia di prodotto, con fasce di prezzo medio-alte per quanto riguarda rivestimenti, porte, serramenti, arredo bagno.
VINCENZO PORCELLI, Titolare Tea Costruzioni Generali

Giulia Cuomo è il tecnico che si è occupato di seguire i lavori del duplex: «Nei cinque mesi in cui è durato il cantiere non ci sono stati particolari problemi o difficoltà. La sfida principale è stata quella di scorporare tutti gli impianti dal condominio per renderli autonomi, su richiesta della committenza».
GIULIA CUOMO, Referente tecnico di Tea Costruzioni Generali



