Costruire In Laterizio | Edilizia sportiva

Supreme Sport Village: murature e trasparenze

Condividi
Nel progetto per il Supreme Sport Village l’articolazione dei volumi è enfatizzata da una calibrata composizione tra vuoti e pieni che si caratterizza per la particolare cura del dettaglio costruttivo delle superfici vetrate e del rivestimento in mattoni faccia a vista in laterizio.

Il progetto per il Supreme Sport Village dello studio LAD (Laboratorio di Architettura e Design) è l’esito di un bando di concessione promosso dal Comune di Roma su un’area libera nel quartiere di Tor Sapienza, nella periferia est della città.

Vista sud-ovest.

Il progetto è stato sviluppato da Francesco Napolitano (architettura) e da Simone Lanaro (interni) con Michelangelo Sabuzi Giuliani, Maria Carla Lini, Marcello Amalfitano. Commissionato da Tor Sapienza 2008 srl nel 2009, il complesso sportivo è stato completato nel 2016 e prevede una superficie destinata ad attività sportive per 1700 mq, e ad attività commerciali per 300 mq.

A partire da una radicale revisione di uno schema progettuale precedente, i progettisti hanno elaborato una proposta in cui l’impianto sportivo, oltre a fornire un servizio agli abitanti, costituisce un elemento di rivitalizzazione di un contesto caratterizzato da tutte le contraddizioni tipiche delle periferie contemporanee.

Pianta al primo piano. I disegni sono stati elaborati da Sara Ganassali sulla base della documentazione messa a disposizione da LAD Laboratorio di Architettura e Design.

Il centro sportivo si articola in tre volumi a cui corrispondono diverse funzioni.
Il volume principale è a doppia altezza, ha una copertura a doppia falda inclinata e ospita due piscine e una piccola palestra. Gli altri due volumi presentano un unico livello fuori terra con una copertura piana praticabile.

Il volume disposto a nord-ovest è addossato direttamente al volume principale; esso ospita i servizi, l’amministrazione, uno spazio per i bambini e le attività di fisioterapia e di recupero atleti. Il volume disposto a nord-est si affaccia sulla cortina edilizia residenziale lungo viale Morandi e contiene gli spazi per le attività commerciali e di ristorazione.

Pur essendo volumetricamente indipendente, esso è collegato dal punto di vista funzionale al volume principale attraverso una galleria le cui testate sono completamente vetrate.

In corrispondenza del fronte sud-ovest la galleria prevede una doppia altezza consentendo un passaggio in quota tra il piano superiore del volume principale e la copertura del volume lungo via Morandi. Gli spogliatoi per la piscina e per le palestre trovano posto in un piano interrato che si estende al di sotto dell’intero complesso.

L’ articolazione volumetrica del centro sportivo è enfatizzata da una calibrata composizione di pieni e vuoti. In tal senso i fronti esterni sono caratterizzati da estese aperture vetrate che stabiliscono rapporti di continuità sempre differenti tra gli spazi interni e l’ambiente circostante, tra le attività che si svolgono nel centro sportivo e la vita urbana.

Vista esterna e interna della galleria d’ingresso.

Una particolare cura del dettaglio connota le soluzioni costruttive sia per quanto riguarda le parti trasparenti, che si caratterizzano per il montaggio di lastre di vetro di grandi dimensioni su intelaiatura metallica, sia per quanto riguarda l’uso del mattone in laterizio faccia a vista con tessitura a cortina per il rivestimento delle parti massive.

Al fine di ottenere una particolare vibrazione della muratura i mattoni e i listelli hanno una colorazione disomogenea che varia dal giallo al salmone. Le pareti che si affacciano nella galleria presentano lo stesso rivestimento in mattoni faccia a vista delle pareti esterne, sottolineandola versatilità del laterizio nelle diverse situazioni di impiego. Dal punto di vista costruttivo il volume a doppia falda ha una struttura portante in cemento armato che sorregge le travi di copertura.

Dettaglio della vetrata della piscina.

Le pareti di tamponamento dell’intero complesso sono rivestite con una muratura in mattoni faccia vista dello spessore di una testa che in corrispondenza degli elementi di coronamento e del parapetto dei volumi a copertura piana si assottiglia in un rivestimento in listelli di laterizio.

 

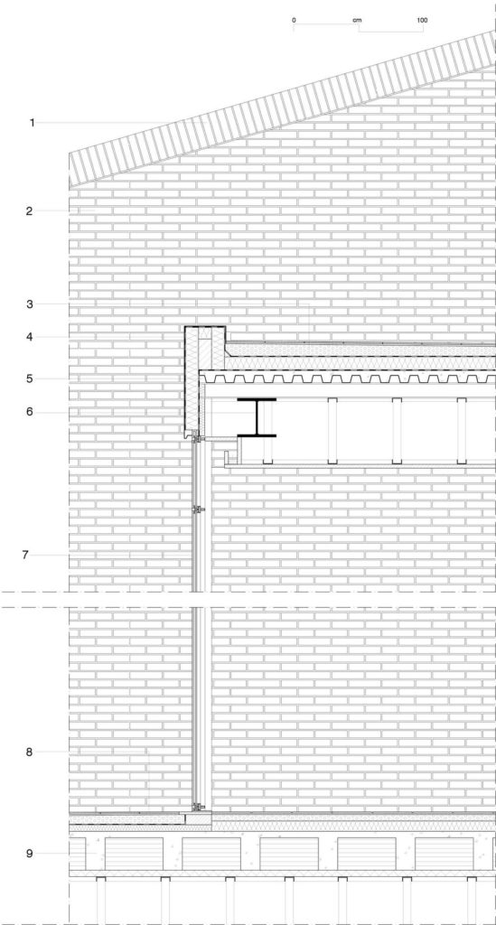
Dettaglio 1: Sezione verticale del fronte sud-ovest del volume destinato a palestra.

Fronti nord-ovest e nord-est

I fronti nord-ovest e nord-est dei volumi che presentano un solo livello fuori terra si aprono verso il parcheggio e verso la strada con una vetrata arretrata rispetto al filo della copertura. Il parapetto che protegge lo spazio praticabile della copertura prevede, internamente ed esternamente, un rivestimento in listelli di laterizio faccia a vista posati con tessitura a cortina e una copertina in basaltina.

 

Legenda

  1. Copertina in basaltina
  2. Cordolo in c.a.
  3. Rivestimento in laterizio
  4. Copertura con guaina elastomerica e pavimento galleggiante
  5. Solaio in c.a. alleggerito parzialmente prefabbricato
  6. Pannello isolante in polistirene
  7. Controsoffitto in fibrocemento
  8. Tenda avvolgibile
  9. Vetrata
  10. Porta di accesso
  11. Solaio in c.a. alleggerito parzialmente prefabbricato con pavimento
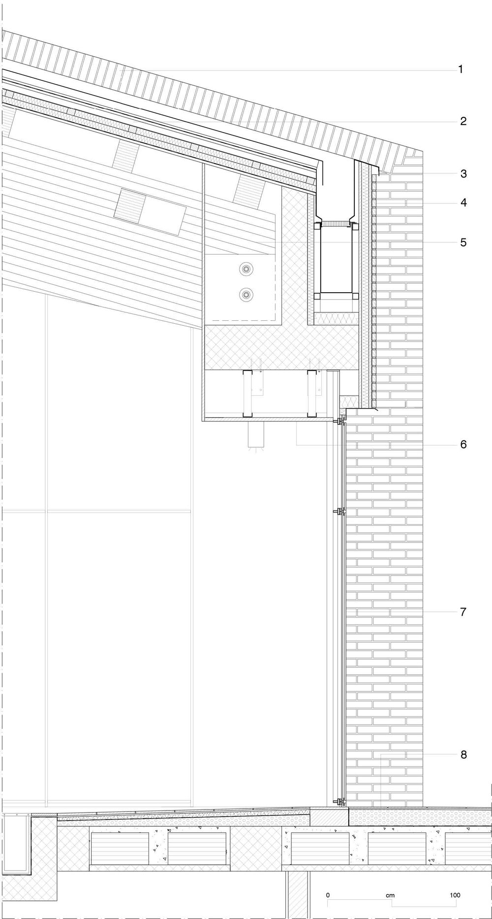
Dettaglio 2: Sezione verticale del volume principale in corrispondenza del fronte sud-est.

Volume principale

Il volume principale si apre, lungo il fronte sud-est, verso gli spazi esterni. Una trave in c.a. consente l’appoggio delle travi portanti della copertura. La trave è isolata e presenta un rivestimento esterno in listelli di laterizio faccia a vista posati con tessitura a cortina.

Legenda

  1. Coronamento in laterizio
  2. Manto di copertura
  3. Scossalina metallica
  4. Rivestimento in listelli di laterizio
  5. Trave principale in l.l.
  6. Controsoffitto in fibrocemento
  7. Vetrata
  8. Solaio in c.a. parzialmente prefabbricato e pavimento

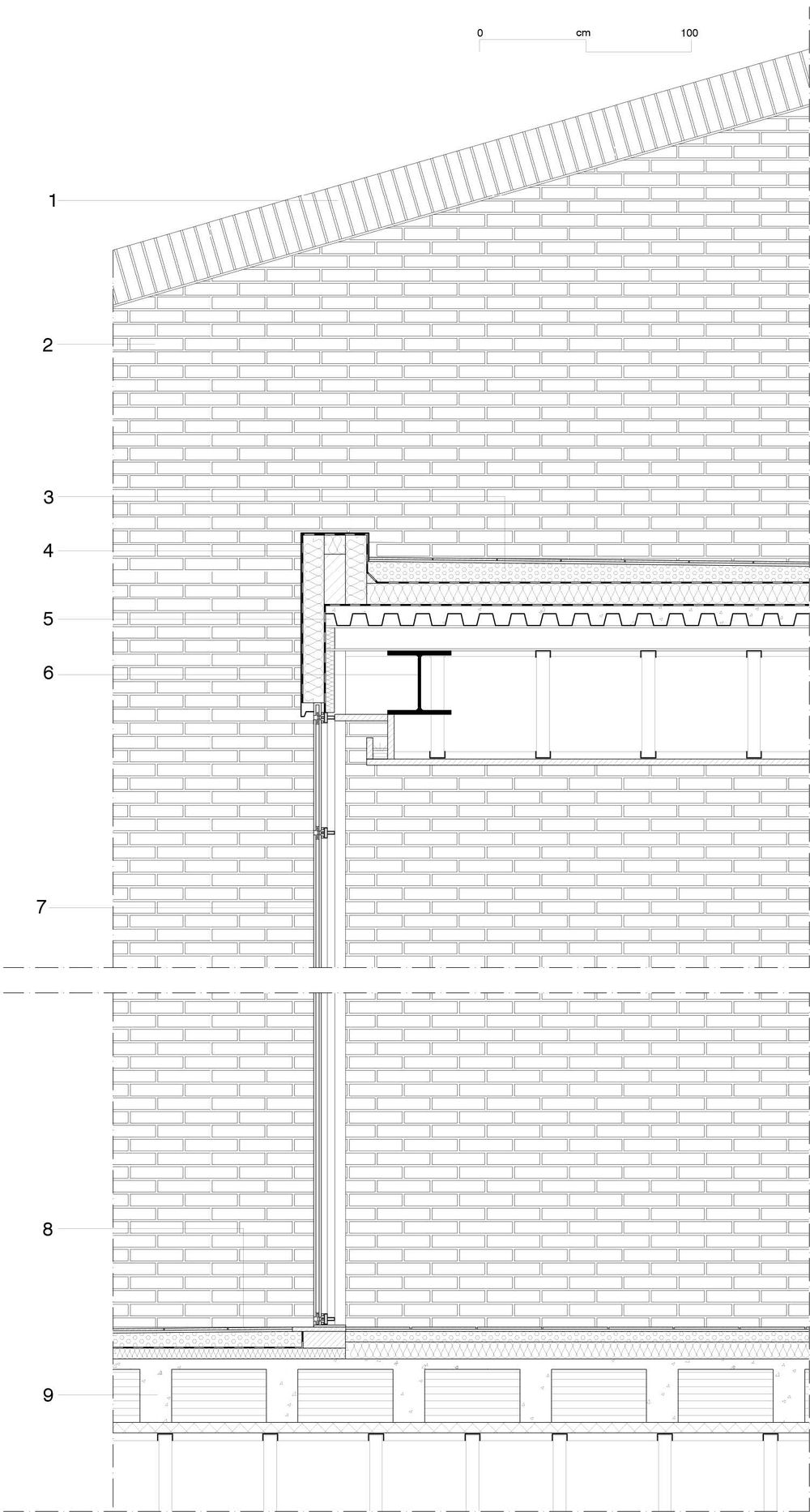
Dettaglio 3
Sezione verticale longitudinale della galleria di ingresso in corrispondenza dell’accesso ai campi da gioco esterni.

La galleria

La copertura della galleria che collega il volume principale delle piscine e il volume destinato alle attività commerciali e di ristorazione è realizzata con un’orditura di travi di acciaio e un solaio in lamiera grecata e getto di completamento in c.a.

Il rivestimento esterno in laterizio faccia vista prosegue anche all’interno della galleria senza interruzioni.

Legenda

  1. Coronamento in laterizio
  2. Rivestimento in listelli di laterizio
  3. Copertura con guaina elastomerica e pavimento
  4. Scossalina metallica
  5. Solaio in lamiera grecata e getto di c.a. collaborante
  6. Trave in acciaio HEB 300
  7. Vetrata
  8. Pavimento
  9. Solaio in c.a. parzialmente prefabbricato

 

di Andrea Campioli,
professore ordinario in Tecnologia dell’Architettura, DABC

Edicola web

Ti potrebbero interessare