
Un panoramico appartamento romano è stato oggetto di un interessante intervento di ristrutturazione. A dirigere il progetto lo studio Brain Factory, nelle figure dell’architetto Paola Oliva e del designer Marco Marotto, che hanno saputo valorizzare il punto di forza dell’intera abitazione ovvero l’affaccio strategico sul parco antistante che regala una vista mozzafiato attraverso tre ampie vetrate.


«Per noi ogni progetto deve essere unico.
Ogni progetto deve rispecchiare chi lo vive.
Dopo un’accurata analisi di quali siano le esigenze del cliente e un’ampia ricerca di mercato, proponiamo sempre soluzioni personalizzate, uniche, attente e raffinate.
Nulla è lasciato al caso: dal processo di creazione dell’idea, alla sua meticolosa realizzazione, in armonia e sinergia con quanto stabilito puntualmente con il cliente» Paola Oliva e Marco Marotto, Brain Factory – Architecture & Design
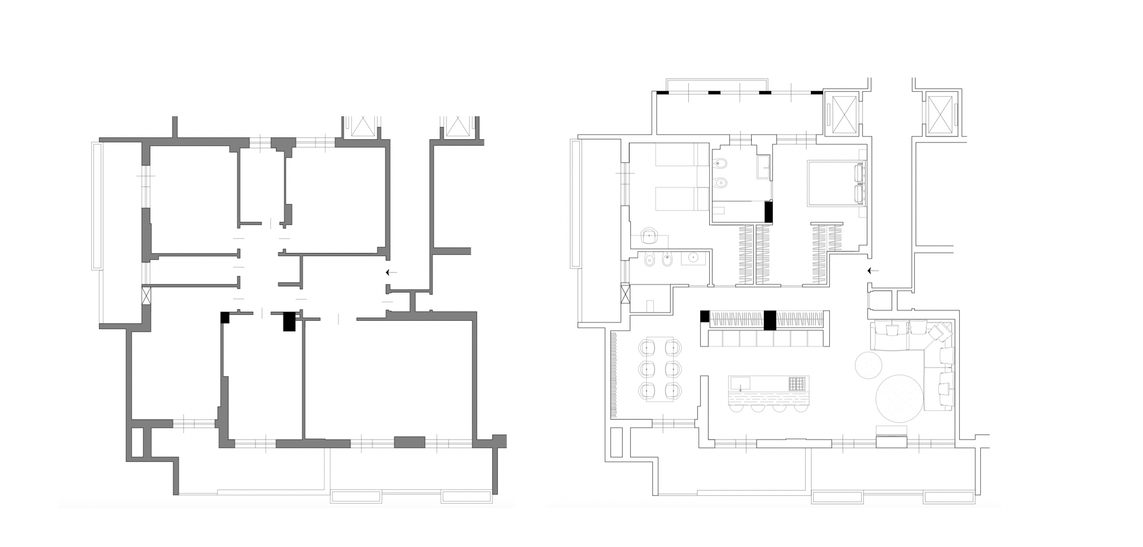
L’immobile, di circa 130 metri quadrati, presentava una planimetria particolarmente rigida, caratterizzata da una classica divisione degli ambienti priva di personalizzazione e frammentata in più ambienti, in particolar modo nella zona giorno.

L’intervento più drastico ha riguardato la zona giorno dove sono stati abbattuti alcuni tramezzi per creare un unico grande ambiente per la zona giorno con al centro la zona cucina. Nella zona notte si è mantenuta quasi intatta la distribuzione degli ambienti ampliando i due bagni e annullando il disimpegno su cui si affacciavano originariamente le due camere da letto.

L’intenzione dei progettisti è stata da subito quella di trasformare gli spazi affacciati sul grande parco in un ampio open space, sviluppato attorno ad una cucina di circa 20 metri quadrati diventata fulcro centrale non solo a livello architettonico ma anche della vita domestica dei proprietari.

Collocata al centro, tra la zona living e la zona pranzo, fa da tramite spaziale tra i due ambienti, enfatizzandone la loro spiccata convivialità progettuale. Tra il living e la cucina nessun filtro “architettonico” ma semplicemente una grande isola centrale attrezzata e una pavimentazione differente che creano un confine immaginario tra i due ambienti.

Diversamente a separare la cucina dalla sala da pranzo un passaggio ampio, completamente aperto, che lascia visibile dal soggiorno lo spazio adibito intorno al grande tavolo conviviale. L’estensione di questo grande spazio a pianta aperta la si scopre lentamente, una volta varcata la soglia di casa. Qui all’ingresso, un piccolo spazio fa da tramite alla zona giorno, “concepito con una spinta creativa molto marcata, che esalta ulteriormente il carattere conviviale dei proprietari tramite la creazione di una struttura a rete elettrosaldata che funge da alloggio per pregiate bottiglie di vino e divertenti vasi di piante”.

In tutto l’appartamento si alternano toni del bianco e del grigio a quelli pastello del rosa e del verde acqua, accostati ad una pavimentazione neutra in gres porcellanato ad effetto legno.

La zona notte resta appartata e raggiungibile attraverso un lungo corridoio realizzato in fase progettuale e definito da una serie di armadiature create opportunamente dietro il grande blocco cucina. Qui una serie di porte rasomuro segnano l’ingresso alle due camere da letto e a uno dei bagni di servizio.

Gli spostamenti di alcuni tramezzi hanno permesso di ripensare questa area dell’appartamento in modo più organizzato e funzionale, creando un accesso privato dal bagno padronale alla camera stessa e ampliando il secondo bagno che serve la seconda camera ed è al contempo a disposizione degli ospiti in una posizione facilmente raggiungibile dalla zona giorno.
Tradizione e innovazione da oltre 50 anni

Nella scelta degli elementi radianti si è optato per due differenti modelli Irsap, che rappresentano due prodotti storici dell’azienda: lo scaldasalviette Novo e il tubolare Tesi che lo scorso anno ha compiuto 50 anni. «La lunga storia di questi prodotti -spiega Marco Rossi Chief Marketing Officer di Irsap – fa sì che oltre a una ricerca continua sul miglioramento della qualità, negli anni si siano evoluti garantendo oggi la massima flessibilità e quindi la capacità di inserirsi in qualunque contesto sia esso nuovo o di ristrutturazione, tanto in termini installativi, quanto estetici». L’azienda mira da anni ad una ricerca continua di innovazione e design, con un investimento di marketing e comunicazione rivolto principalmente alla catena tradizionale dei grossisti termoidraulici e installatori. «I nostri rivenditori sono selezionati in base ai loro track record di professionalità verso i loro clienti e sono poi curati con programmi di fedeltà ed un’assistenza continua e basata su rispetto reciproco, premiando la fedeltà con il massimo del servizio possibile in termini di assistenza al momento dell’ordine e cura del post vendita oltre che programmi di formazione continua per far cercare di semplificare al massimo il loro lavoro con i nostri prodotti. Sempre più però si sta ponendo attenzione anche agli utilizzatori finali dei nostri prodotti nonché agli influenzatori, siano essi architetti o progettisti».
Il distributore
Innovazione, organizzazione e know-how

Dal 1916 ad oggi l’azienda Odorisio è sinonimo di professionalità, passione e dedizione. «Oggi – racconta il titolare – consta di diversi punti vendita per un totale di circa 3000 metri quadrati di spazi espositivi in cui un’equipe di professionisti attenti alle esigenze e ai desideri della clientela studiano gli spazi, guidano il cliente nella scelta dei materiali e suggeriscono le soluzioni che meglio si sposano con il proprio stile per garantire il massimo della consulenza». Il mix di hi-tech e design, nel mercato della costruzione edilizia, è la “philosophy” aziendale di Odorisio Spa, da cui deriva il costante impegno nel migliorare il proprio servizio, offrendo interessanti opportunità commerciali. «Per Odorisio Spa il valore della tradizione è nel proprio core business, unendo il passato con il presente ed il futuro.Abbiamo il desiderio continuo di migliorare e migliorarci. Puntiamo pertanto sulla formazione nostra e dei nostri clienti da sempre, offrendo così servizi e competenze continuamente all’avanguardia. I nostri corsi professionali e di aggiornamento sono rivolti al cliente a 360 gradi, dal privato al professionista, sempre e comunque all’insegna dell’innovazione e della sostenibilità».
L’imprenditore edile
Un rapporto di fiducia consolidato con il cliente

Tutto l’intervento è stato seguito dall’impresa Citarigabi.Co, che ha messo in pratica dall’inizio alla fine il progetto creato e proposto ai clienti dallo studio Brain Factory nei minimi particolari. «La collaborazione con lo studio è stata fondamentale, bisogna sempre restare in contatto e incontrarci sul cantiere per eventuali aggiornamenti. È molto importante trovare un accordo di collaborazione con i nostri clienti per soddisfare sempre le loro esigenze e finire in un tempo prestabilito tutti i lavori. Anche in questo caso è stato così e durante i lavori non ci sono stati vincoli o particolari problematiche che potessero ostacolare o creare problemi alla realizzazione del lavoro».



