
Arch. Marco Brianzoli | Revisione radicale degli interni
«La particolare conformazione planimetrica e le dotazioni di servizio dell’immobile, allo stato di fatto, hanno comportato, per l’unità in questione, una radicale revisione della distribuzione interna con demolizione integrale delle tramezzature e delle dotazioni impiantistiche presenti, e il totale riassetto degli spazi interni a disposizione.
Le specifiche richieste avanzate dalla committenza in termini di suddivisione e articolazione degli spazi hanno inoltre comportato la revisione, a crescere, del numero delle aperture presenti nel prospetto interno dello stabile, due nuovi vani finestra sono stati infatti previsti per illuminare alcuni degli ambiti e per migliorare complessivamente le condizioni di abitabilità di quei locali interni scarsamente illuminati e inizialmente destinati a spazi di magazzino e deposito per l’attività commerciale».
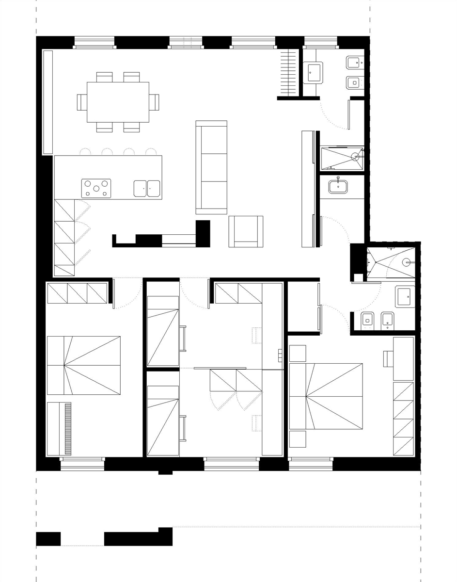
Gli interventi di riqualificazione eseguiti su questa unità immobiliare sono stati volti alla trasformazione, con cambio di destinazione d’uso, di ambiti destinati ad attività commerciale, collocati al piede di uno stabile residenziale, di recente edificazione, sito a Milano in zona navigli.
LA STRUTTURA PORTANTE E LA REDISTRIBUZIONE INTERNA
La struttura portante, interamente realizzata con pilastri in calcestruzzo armato e solai in laterocemento, con partizioni in forati di laterizio, ha permesso la pressoché totale libertà di conformazione degli ambienti interni e delle nuove aperture; tutti gli ambiti della zona giorno, oltre a un servizio igienico, hanno quindi potuto trovare libero posizionamento sul fronte aperto verso il giardino di pertinenza dell’immobile. La zona notte, più tradizionalmente organizzata e articolata con tre camere, una piccola lavanderia, un ripostiglio e un servizio igienico, ha invece trovato collocazione verso il fronte aperto sulla corte comune.
L’integrazione, nella zona giorno, della maggior parte degli ambiti distributivi ha infine permesso il massimo sfruttamento delle superfici a disposizione per soddisfare le istanze presentate dalla proprietà in termini di numero di locali e relativi dimensionamenti.
L’ADEGUAMENTO TECNICO IMPIANTISTICO
L’adeguamento tecnico impiantistico, necessario a rispondere delle rinnovate necessità d’uso, ha comportato la demolizione dello strato di sottofondo di pavimento dell’intero immobile e di parte del suo substrato tecnico, di tipo alleggerito, per poter liberamente alloggiare, in estradosso di soletta, tutte le nuove reti e canalizzazioni e, nello stesso tempo, consentire un adeguato appoggio alle tramezzature realizzate ex novo in forati da 8 e 12 cm.
Insieme ai nuovi tavolati, alcuni interventi di soppalcatura, a formare ripostigli in quota, sono stati realizzati parallelamente posando tavelloni in laterizio dello spessore di 6 cm con sovrastante cappa in calcestruzzo armata con rete elettrosaldata da 6 mm per 20×20 cm.
Le intonacature sono state realizzate con prodotti di tipo premiscelato a base di gesso e stese, previa realizzazione di fasce, su tutte le nuove tramezzature previste e telai rasomuro in alluminio per porte a battente fornite dalla ditta PortArredo, sviluppate a tutt’altezza (270 cm) sono stati posati in opera a completare i paramenti divisori e le relative aperture.
RETI IDRICO SANITARIE DI ADDUZIONE
Al perimetro dell’unità, le reti idrico sanitarie di adduzione sono state allacciate ai punti di erogazione del sistema centralizzato, così come quelle di scarico, più liberamente disposte in corrispondenza dei servizi igienici precedentemente realizzati, con raccolta e allontanamento operati in intradosso della soletta di calpestio dei sottostanti locali interrati, destinati a parcheggio.
Gli allacciamenti alla rete condominiale di riscaldamento sono stati eseguiti mediante interposizione di collettore di distribuzione alloggiato in vano dedicato e di radiatori in ghisa del tipo Tesi 3 della ditta Irsap; i cablaggi elettrici, così come quelli legati alle adduzioni e allo scarico di condensa dell’impianto di condizionamento (predisposti solo all’interno dei locali soggiorno e camere, con allacciamento al motore previsto nel cortile di pertinenza) sono stati posati all’interno delle tramezzature, mediante scanalature realizzate con l’uso di flessibile.
Per le reti elettriche, infine, si è previsto, oltre alla consueta fornitura di Fm e illuminazione, la predisposizione dell’impianto di allarme, la stesura di rete dati cablata per eventuali sviluppi di domotica con elevato flusso d’informazioni e l’allacciamento, per la movimentazione meccanica attraverso motore a rullo, della tapparella della portafinestra d’ingresso, fornita dalla ditta F.lli Scaccabarozzi.
Tutti i riempimenti delle tracce a pavimento, realizzate nel sottofondo tecnico alleggerito, sono stati eseguiti con materiale a base di cemento e polistirolo, del tipo St444 di Fassa Bortolo, così da non gravare sulle solette esistenti e rispettare le caratteristiche esecutive riscontrate nell’immobile.
Alla stessa maniera, le tracce a parete sono state chiuse con stucco rasante riempitivo a base di gesso così da evitare il successivo formarsi di crepe nei muri; uno strato lisciante di gesso scagliola, accompagnato dalla posa di paraspigoli, a salvaguardia delle porzioni più esposte e potenzialmente oggetto di deterioramento, ha completato la finitura e preparato il fondo per le successive imbiancature.
Un materassino isolante, acustico e termico, in polietilene espanso, del tipo Isolamant Special della ditta Isolmant, ha costituito il substrato sopra al quale sono stati posati un foglio di polietilene estruso, nello spessore da 0,25 mm, risvoltato sulle pareti a realizzare una barriera al vapore, e reti elettrosaldate zincate da 5×5 cm, sovrapposte, a consolidare il getto del sottofondo di pavimento.
Lo stesso sottofondo è stato realizzato mediante pompaggio in opera di Topcem Pronto di Mapei ad asciugatura rapida e tirato in piano a frattazzo fino, così da permettere, in tempi contenuti, la conseguente posa, a finire, di pavimento in legno.
SISTEMA DI PROTEZIONE E IMPERMEABILIZZAZIONE
Alcune porzioni di uno dei servizi igienici, caratterizzato dalla presenza di un vano vasca/doccia realizzato in muratura, sono state trattate con malta impermeabilizzante Mapelastic di Mapei, stesa a spatola e a rullo in due mani, rinforzata anche mediante l’utilizzo di garze a proteggere concavità e convessità, più facilmente oggetto di fessurazioni e infiltrazioni. Questa membrana ha costituito il substrato impermeabilizzante già idoneo per la successiva finitura con stuccatura rasante e resina epossidica.
NUOVE APERTURE
Le nuove aperture realizzate nelle murature perimetrali sono state completate con la posa di serramenti ad anta-ribalta in alluminio, realizzati su misura e alloggiati su controtelai, ancora in alluminio, e davanzali in pietra serena.
Inferriate antintrusione, posate in opera mediante zancatura di staffe nello spessore delle pareti perimetrali, sono state previste per migliorare le condizioni di sicurezza dell’appartamento e impedire eventuali infrazioni in un immobile sito al piano terra e caratterizzato da facile accessibilità.
Tutti i serramenti, là dove non già presenti, sono stati completati con tapparelle oscuranti in alluminio, anche dotate di elettrificazione del sistema di apertura e di comando di sblocco manuale.
I cassonetti di alloggiamento degli avvolgibili sono stati integrati nello spessore del controsoffitto mediante realizzazione di appositi vani, a scomparsa a raso plafone, dotati di botole d’ispezione in telai di alluminio e pannelli di cartongesso. Allo stesso modo, profili in alluminio realizzati per la posa di corpi illuminati del tipo 094 della ditta Viabizzuno, sono stati previsti a completamento delle opere di controsoffittatura. Nella stessa intercapedine di plafone, spessa 30 cm, sono stati previsti tutti gli allacciamenti delle reti di esalazione dei bagni e della cappa della cucina.
Altri profili di alluminio sono stati predisposti nello spessore dell’intonaco di rivestimento delle tramezzature interne e posati in opera per permettere il successivo alloggiamento di pannellature in plexiglas da 10 mm trattate con finitura delle superfici a vista con effetto satinato. Le lastre hanno permesso una più filtrata e diafana visione degli ambienti retrostanti, pur mantenendo una buona illuminazione complessiva degli spazi separati.
L’intero appartamento, fatta eccezione per il vano lavanderia, è stato interessato dalla posa di pavimentazione in legno, in parquet di tipo industriale, in listelli da 2x2x30 cm, posati con collante, previo trattamento del substrato con Primer Fast 500 di Chimiver per evitare eventuali problematiche legate alla risalita di umidità residua dal massetto di sottofondo.
Lamatura in opera e verniciatura, con finitura opaca, hanno interessato l’intero sistema di pavimentazione in legno che, mediante l’uso di prodotti a base acqua, ha preservato la tonalità dall’eccessiva ossidazione data dalla normale esposizione alla luce solare.
Per la pavimentazione del vano lavanderia è stato lavorato a spatola il substrato in stucco colorato e finito in resina epossidica trasparente e impermeabilizzante. Allo stesso modo, le pareti dei servizi igienici sono state lavorate con stucco decorativo steso a spatola e, ancora, strato di rivestimento protettivo in resina. I sanitari posati in opera sono della ditta Flaminia della serie Link, la rubinetteria è della ditta Zucchetti, del tipo Isy e Pan.





