Maurizio Lai. Scenografia fusion a Milano

Condividi
Una parete è costituita da una boiserie in vetro retro-verniciato dai motivi geometrici interrotti da piccoli volumi luminosi in policarbonato colorato
Una parete è costituita da una boiserie in vetro retro-verniciato dai motivi geometrici interrotti da piccoli volumi luminosi in policarbonato colorato La scarsità d’illuminazione nella zona posteriore ha ispirato un’area lounge dai toni caldi e dalle luci soffuse (foto Matteo Guidetti)

All’interno di questo ristorante di cucina asiatica il dialogo tra luce e materia trasforma gli interni in un sorprendente teatro dal forte impatto scenico, amplificato dalle inedite decorazioni luminose su soffitti e pareti.

Maurizio Lai
Maurizio Lai

Stessa firma per lʼultimo nato del gruppo asiatico Wu Taiyo a Milano: dopo il Sushi Restaurant Taiyo aperto nel 2013, Maurizio Lai di Lai Studio progetta il Sushi Lounge, in via Adige. Gli ingredienti principali sono gli stessi, come le suggestioni scenografiche di forte impatto visivo, dove il dialogo tra luce e materia è protagonista indiscusso.

 

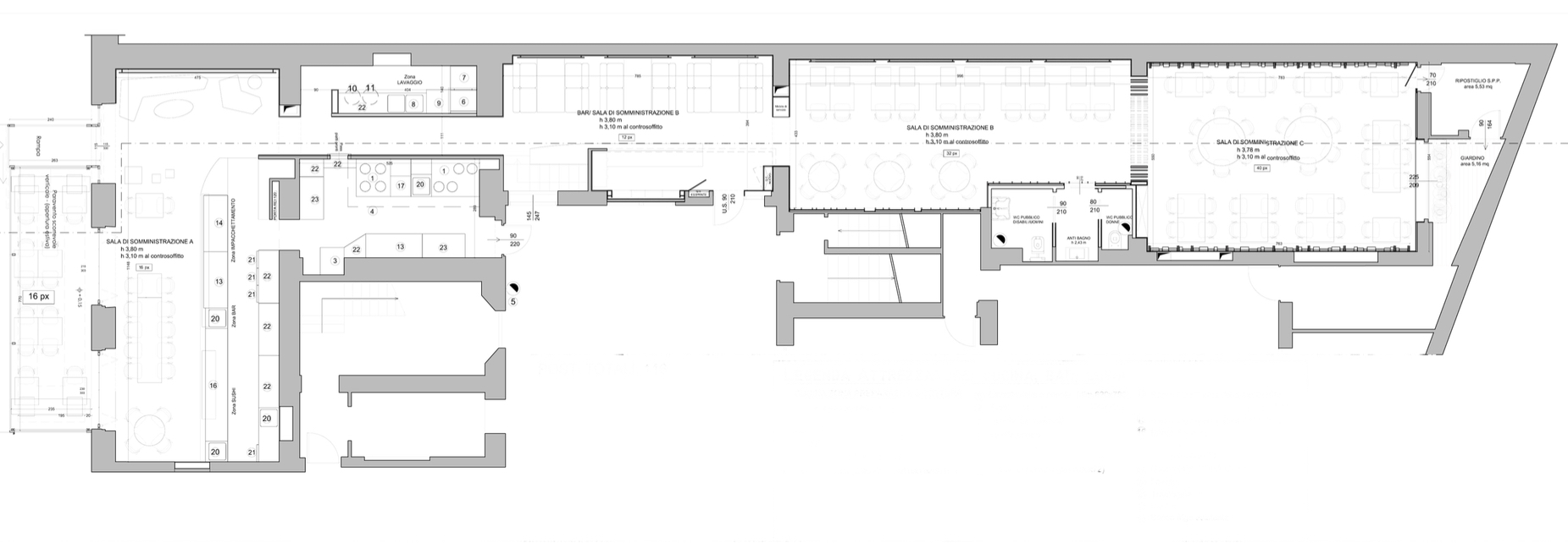
Pianta dello stato di fatto
Pianta dello stato di fatto

Distribuito su oltre 500 metri quadrati, il ristorante si presenta come un insieme di ambienti di dimensioni e forma molto diverse.

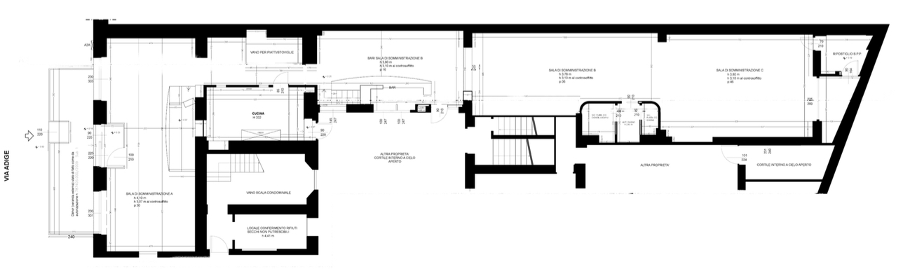
Pianta di progetto
Pianta di progetto

Il progetto di recupero del ristorante preesistente ha enfatizzato le specificità del luogo: una zona su strada affacciata sul dehor e una zona interna dallo sviluppo longitudinale particolarmente ampio che sbocca in una sala affacciata su un giardino interno. La scarsità di luce naturale ha posto le basi per un importante progetto d’illuminazione che diventa al tempo stesso elemento scenografico fondante.

La saletta, rivestita da grandi pannelli tappezzati, è composta da quattro salottini, tre dei quali sono suddivisi da una tenda composta da fili sottili che si diramano dalle spalliere. Nel corridoio di collegamento tra il sushi bar e la zona dining il controsoffitto luminoso è realizzato in moduli di lamiera verniciata con incisioni al laser
La saletta, rivestita da grandi pannelli tappezzati, è composta da quattro salottini, tre dei quali sono suddivisi da una tenda composta da fili sottili che si diramano dalle spalliere. Nel corridoio di collegamento tra il sushi bar e la zona dining il controsoffitto luminoso è realizzato in moduli di lamiera verniciata con incisioni al laser (foto Matteo Guidetti)

Due le aree principali: un luminoso sushi bar nella porzione su strada e una zona lounge nella parte posteriore. All’ingresso, la zona bar è caratterizzata da un lungo bancone in legno naturale, con il top rivestito in paper stone dal colore scuro, in contrasto con l’ampio retro bar realizzato interamente in vetro retro-illuminato e acciaio, con una struttura dal disegno geometrico irregolare che sale fino al soffitto della sala, completamente rivestito questo, di specchi dalle tonalità fumè.

La scarsità d’illuminazione nella zona posteriore ha ispirato un’area lounge dai toni caldi e dalle luci soffuse
La scarsità d’illuminazione nella zona posteriore ha ispirato un’area lounge dai toni caldi e dalle luci soffuse (foto Matteo Guidetti)

Anche la scelta dei materiali ha seguito due linee guida principali: trasparenti e luminosi all’ingresso, materici e setosi nella zona lounge; quest’ultima è preceduta da un corridoio rivestito da una boiserie in legno sulla quale si succede una scansione di fessure luminose e una controparete caratterizzata da un grande mosaico di specchio scuro con intagli.

Nella sala sul retro del ristorante si sviluppa un grande lampadario metallico dai toni bruniti, appoggiato su una serie di tele a stampa digitale (foto matteo Guidetti)
Nella sala sul retro del ristorante si sviluppa un grande lampadario metallico dai toni bruniti, appoggiato su una serie di tele a stampa digitale (foto matteo Guidetti)

L’area dininig è composta da una prima saletta suddivisa in quattro salottini, a cui segue una sala caratterizzata da un lunga panca imbottita, lungo la quale si intercalano i tavoli. Infine l’ampia sala affacciata su una zona verde interna è caratterizzata da un’illuminazione scultorea a soffitto in metallo brunito, circondata da una cornice in specchio scuro.

Alle pareti del sushi bar dell’ingresso, leggeri giochi di luce sulle arcate e un grande pannello luminoso in airtex stampato arricchito da una sovrastruttura metallica a due strati con intarsi in plexiglas opalino e brunito. Sempre nella sala affacciata su strada tre grandi lampadari circolari e filiformi in metallo verniciato fanno da contrappunto alle pareti retroilluminate (foto Matteo Guidetti)
Alle pareti del sushi bar dell’ingresso, leggeri giochi di luce sulle arcate e un grande pannello luminoso in airtex stampato arricchito da una sovrastruttura metallica a due strati con intarsi in plexiglas opalino e brunito. Sempre nella sala affacciata su strada tre grandi lampadari circolari e filiformi in metallo verniciato fanno da contrappunto alle pareti retroilluminate (foto Matteo Guidetti)

Anche le pareti acquistano una connotazione scultorea tridimensionale: ospitano, infatti, una scansione irregolare di elementi ricurvi, rivestiti da una varietà di essenze preziose dalla finitura naturale, che lasciano trapelare lame di luce orizzontali e verticali. Gli arredi e le sedute si mantengono su delle tonalità monocolore, armonizzandosi e fondendosi con i diversi rivestimenti del locale.

Scheda
Ristorante Taiyo
Location: via Adige, Milano
Progetto: Laistudio, Maurizio Lai
Concept & Styling: Elena Mazzoleni
Digital Art: Nina Ntt Design Assistant: Cindy Russi
Project Assistant, Fotografia: Matteo Guidetti
Superficie totale: 525 metri quadrati
Contractor e allestimenti: Fm Arredamenti
Costruzioni Scenografiche: La Fabbrica dei Miracoli
Large Format Print: Invisual
Wood Veneer: Tabu
Sedute Croissant: Billiani
Outdoors Illuminazione: Modo Luce (Lampade Icaro) e Foscarini (Lampade Gregg)

Richiedi maggiori informazioni

Edicola web

Ti potrebbero interessare