SanMarco Terreal | XV Biennale di architettura di Venezia

Padiglione Italia: Martin Rauch, Anna Heringer e l’argilla cruda di Noale

Condividi
SanMarco fornisce l’argilla per l’installazione al Padiglione Italia del monolite ‘Pepita’ interamente realizzata in Pisè. Le 5 tonnellate di terra sono provenienti dalla cava della fornace SanMarco di Noale.

SanMarco Terreal nell’ambito della XV Biennale di Architettura è impegnata nell’attività di esplorare e dare valore alle potenzialità dell’argilla cruda.
In particolare è la collaborazione con gli artisti Martin Rauch ed Anna Heringer (che sono stati incaricati dal coordinatore Alejandro Aravena di allestire all’interno del Padiglione Italia un’installazione in terra cruda) a essere al centro dell’iniziativa dimostrativa.

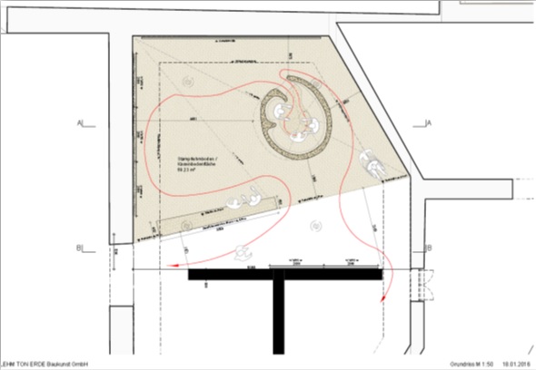
Progetto sezione.
Progetto sezione e pianta.

Progetto pianta

Dopo una visita alla fornace SanMarco di Noale (Ve) i due architetti oltre a testaare i materiali per l’installazione hanno verificato l’opportunità di utilizzare argille locali, in rispetto e in sinergia con il territorio, come nella migliore delle tradizioni del costruire in ‘terra cruda’.
Martin Rauch, uno dei più appassionati interpreti dell’uso della terra cruda nelle sue architetture, rifugge sin dall’inizio dall’uso del cemento e degli altri materiali normalmente impiegati cercando di risolvere i limiti strutturali legati all’uso della terra attraverso un approfondito e lungo studio sulle stratificazioni, la loro compattazione, la tipologia dei casseri, e l’impiego di rinforzi e armature, fino a divenire, oggi, uno dei più accreditati conoscitori a livello internazionale di questo versatile materiale.

Il muro in Pisè (terra battuta), è la tecnica che Rauch maggiormente predilige: strato dopo strato, l’opera assume forza e presenza, esternamente comunica l’ordito della sua trama attraverso i differenti colori e texture delle argille impiegate.
Il muro in Pisè (terra battuta) è la tecnica che Rauch predilige: strato dopo strato l’opera assume forza e presenza, esternamente comunica l’ordito della sua trama attraverso i differenti colori e texture delle argille impiegate.

L’istallazione al Padiglione Italia, denominato monolite ‘Pepita’ consiste in una forma ovale, alta 3 m, interamente realizzata in Pisè: sono state necessarie 5 tonnellate di terra provenienti dalla cava della fornace SanMarco a Noale per realizzarla.

PepitaAll’impasto è stato anche aggiunto del laterizio frantumato (cocciopesto) e 1 mc di paglia trinciata in piccole dimensioni (max 5 cm) ricavato dai resti della precedente struttura, come memoria simbolica.

Per la realizzazione sono stati utilizzati gli impasti preparati nello stabilimento: l’architetto Rausch e i tecnici di Noale hanno miscelato le materie prime nelle opportune quantità, monitorando il processo per ottenere la qualità ricercata, poi il prodotto ottenuto è stato imballato e trasportato dallo stabilimento a Venezia, assieme ad alcuni mattoni secchi, provenienti dalla produzione standard, che sono stati utilizzati anch’essi per realizzare il manufatto.

Anche il pavimento esterno intorno all’installazione (rammed earth floor) è realizzato interamente in argilla battuta (5 tonnellate) con l’aggiunta di un seminato di ghiaino (dimensioni miste da 0-25 mm) e una piccola quantità di cocciopesto che rafforza il senso di appartenenza al luogo e alla memoria.

Leggerezza e matericità, interno ed esterno, tecniche e materiali antichi espressi secondo un linguaggio moderno, passato e presente, memoria dolorosa e speranza verso un avvenire luminoso, tutto sembra convivere e riconciliarsi in questa autentica opera contemporanea.

Leggi anche: Costruire con la terra cruda

Edicola web

Ti potrebbero interessare