Progetto | Filiale di una banca

Una banca a kilometro zero

Condividi
La nuova filiale di Arezzo dell’istituto di credito Banca Tema prende spunto dal territorio toscano per dare vita a degli interni informali senza barriere, dove il cliente possa sentirsi accolto
(Il filo conduttore del concept prende spunto dai colori del territorio circostante. foto di Margherita Caldi Inchingolo)

Risale al 2017 la prima collaborazione tra la Banca Tema e i progettisti di Modourbano, con la realizzazione del nuovo concept per le filiali e la realizzazione della prima in provincia di Viterbo. Lo studio milanese si è trovato a progettare per una banca strettamente legata a un territorio che spazia dalla costa tirrenica alla montagna dell’Amiata e dalla campagna ai centri medievali della Toscana.

(Gres e materiali lapidei, colori terracotta e verde marcano l’immagine della filiale. foto di Margherita Caldi Inchingolo)

Alla base del concept, Modourbano ha cercato dunque di mettere in evidenza il profondo legame tra l’istituto di credito e il contesto territoriale, oltre allo spirito collaborativo che il management ha creato con i propri soci e i correntisti. «È in questo contesto che è nata l’idea di estrapolare alcuni elementi fondamentali del territorio delle Maremme come il mare, il bosco e la campagna, così da intingere la progettazione in quei colori e in quella particolare modellazione del suolo. È così che prende vita il concept delle filiali: la boiserie del blue del Tirreno, il verde della macchia e le superfici ondulate nei mobili» spiegano i progettisti.

Cosa è cambiato
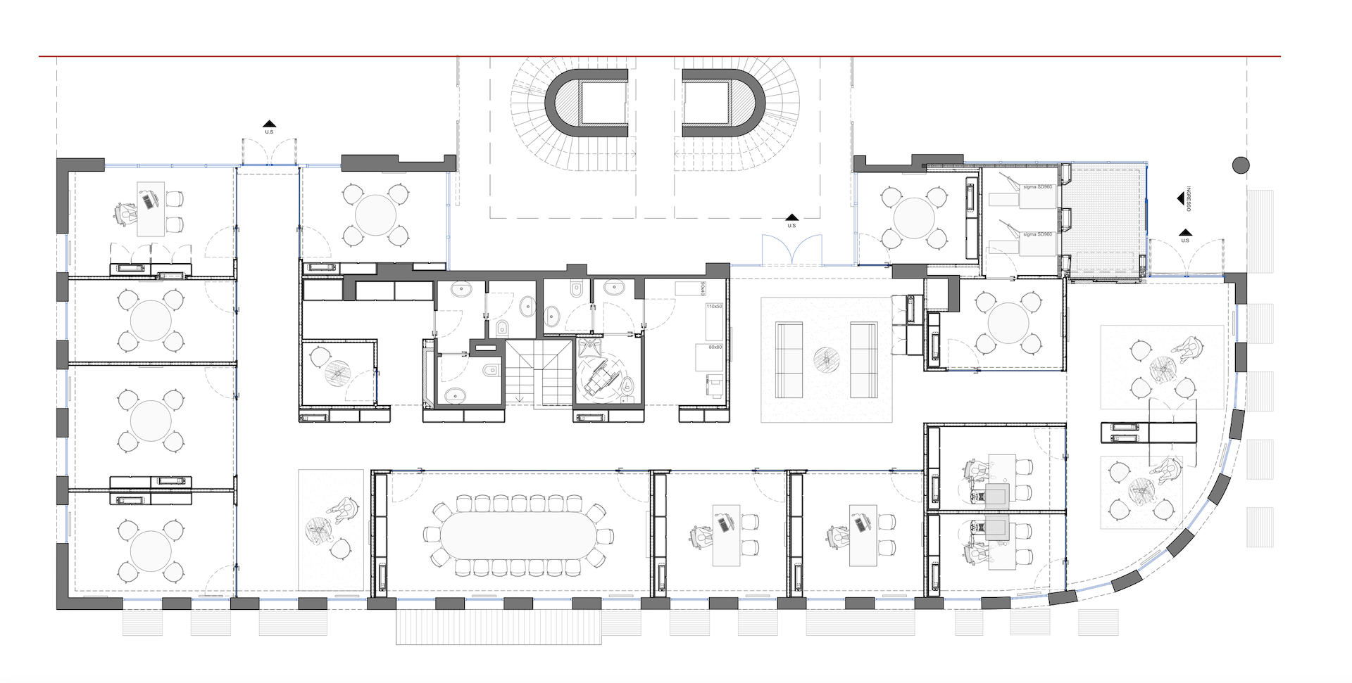
(Planimetria di progetto)

I nuovi uffici di Banca Tema subentrano a quelli di Banca Intesa, che nello stesso spazio aveva una sua filiale. I 400 metri quadri di superficie all’interno di un edificio degli anni Novanta mantengono dunque solo il perimetro originario e vengono completamente stravolti: impianti, finiture, partiture in cartongesso e vetrate, blocco servizi. Vengono mantenute solo le vetrine su strada. Il caveau di 30 metri quadri al piano interrato viene rinnovato con un intervento di messa in sicurezza che affianca la lamiera di acciaio alle murature in cemento. Tutti gli impianti della filiale passano all’interno dei controsoffitti in cartongesso, scelti per le elevate prestazioni acustiche ed estetiche e per la sostenibilità. A pavimento viene posato il gres nel formato 40×40 e le pareti divisorie, ad eccezione che per il blocco servizi, sono in vetro.

(Lo spazio ha volutamente un carattere fluido e informale. foto di Margherita Caldi Inchingolo)

L’apertura della filiale di Arezzo risale al marzo scorso: qui sono il territorio aretino e senese a influenzare il concept, che si materializza in una nuova immagine ad hoc dove prevalgono le nuance calde del marrone per una matericità più solida e più lapidea, in risonanza con un’immagine evocativa delle mura delle città medievali toscane. Con i suoi 400 metri quadrati la sede di Arezzo è anche un hub di riferimento, per cui i toni si fanno leggermente più formali. La scelta per il pavimento ricade sul gres di grande formato, mentre il carattere fluido e informale del concept si rispecchia nelle pareti divisorie trasparenti in vetro con i profili verdi, a cui si affiancano arredi su misura in mdf laccato.

(Sono stati eliminati tutti gli apparati di sicurezza come le bussole e i controlli accessi e definita un’area self h24. foto di Margherita Caldi Inchingolo)
Luca Romagnoli

Il progettista

«Modourbano è molto orgoglioso di aver accompagnato l’istituto bancario in alcune tappe della sua crescita e, al contempo, riconoscente per aver avuto l’opportunità di lavorare con aziende e maestranze locali, che si sono sempre sentite pienamente coinvolte nel processo di ideazione e costruzione delle filiali, rivelando il proprio senso di appartenenza al luogo e un profondo legame di stima con il cliente» LUCA ROMAGNOLI, Ad Modourbano

(I controsofitti acustici ad alte prestazioni sono stati scelti anche per il valore estetico. foto di Margherita Caldi Inchingolo)

Se da una parte l’ispirazione è tratta dal paesaggio cirocostante, dall’altra il programma funzionale segue il preciso diktat di andare incontro a una clientela più privata: una concezione diversa dello sportello bancario dove le barriere tra utente e personale non sono più rigide e marcate, per lasciare spazio alla relazione umana e alla fiducia: il layout degli spazi prevede quindi una serie di ambienti di dimensioni ridotte, trasparenti, insieme a una sala riunioni, lungo tutto il perimetro della filiale.

Dal punto di vista distributivo all’ingresso trovano spazio un’importante area self h24 e una prima accoglienza per i clienti di “sportello” con due zone per le attività di cassa e gli uffici della direzione.
Il bancone è stato sostituito con delle postazioni di cassa o di consulenza, dove cliente e operatore possono condividere lo stesso schermo in un clima di trasparenza. Modourbano ha previsto inoltre una zona lounge con i divani dove trova spazio anche la reception.

(I fan coil sono integrati all’interno delle armadiature. foto di Margherita Caldi Inchingolo)
(Gli arredi sono realizzati su disegno in mdf laccato in colore terracotta. foto di Margherita Caldi Inchingolo)

La filiera delle professioni

Alessia Mora

Il produttore
Prestazioni multiple

«I rivestimenti fonoassorbenti Celenit combinano in un’unica soluzione prestazioni acustiche, comfort indoor e assenza di emissioni, sicurezza certificata, ecocompatibilità e design. E nel caso di Banca Tema si vede chiaramente come la scelta del colore del pannello sia coerente con il moodboard di progetto. Inoltre, le modalità di installazione di tali sistemi consentono di applicare i pannelli in lana di legno alle classiche strutture per cartongesso in rapidità e senza la necessità di procedere con ulteriori finiture».
ALESSIA MORA,Responsabile Ufficio tecnico Celenit

Piero Avanzati

Il distributore
Formazione e social come strategia

Avanzati Celestino è un’impresa familiare unipersonale fondata nel 1978 situata a Civitella (Ar) in Val di Chiana. Rivenditore edile e arredobagno di riferimento per la provincia, si avvale di uno staff formato da 15 professionisti che assistono il cliente proponendo i migliori prodotti del settore. La ditta dispone di uno spazio coperto di oltre 7.000 metri quadri che ospita ferramenta e magazzino edile, con oltre 800 metri quadri di spazio espositivo.
«La formazione costante del personale – spiega il titolare Piero Avanzati – è una priorità per poter dare il giusto supporto ai clienti. Con un mercato in continua evoluzione è indispensabile utilizzare gli strumenti giusti per ampliare il proprio bacino di clientela e promuovere l’azienda. Stiamo orientando la strategia di marketing verso i social, costruendo campagne pubblicitarie dedicate e pianificando un calendario di pubblicazioni settimanale. L’aggiornamento costante dei profili web, le ricerche di mercato mirate e mailing dedicati ai nostri clienti (esistenti o potenziali) sono gli strumenti che maggiormente utilizziamo per renderci visibili». PIERO AVANZATI, Titolare Avanzati Celestino

Silvio Basagni

L’imprenditore edile
Un approccio a 360 gradi

L’impresa coinvolta nel progetto come general contractor della filiale è la Basagni Domenico di Arezzo. Nata nel 1983 come ditta individuale specializzata in impianti elettrici, nel 1996 riceve una commessa dalla Ras Assicurazioni e, cominciando da un contratto di manutenzione, la collaborazione cresce negli anni fino a evolversi nel 2000, quando l’impresa si trasforma in general contractor grazie all’acquisizione di professionalità diverse. Oggi la Basagni conta una trentina di dipendenti e lavora soprattutto nel campo delle ristrutturazioni di interni. Il principale cliente resta la compagnia assicurativa Allianz, ma l’azienda opera anche nel settore commerciale e uffici e in misura minore per clienti privati. LUCA BASAGNI, Responsabile ufficio tecnico Basagni

 

Richiedi maggiori informazioni

Edicola web

Ti potrebbero interessare