
La ristrutturazione di un appartamento degli anni Quaranta mette in luce un muro di spina in mattoni pieni che stravolge il progetto, mettendo al centro della nuova soluzione lo spirito “industrial” e i materiali primari.

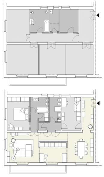
Un intervento come tanti, nel centro storico di Pescara. Una palazzina anni Quaranta dove i propietari vogliono trasformare i locali adibiti a uffici nella loro abitazione. Il progetto è definito, fino a che incominciano i lavori e sotto all’intonaco della parete di spina viene alla luce una muratura in mattoni pieni con delle aperture con archi, che stravolgono la idea di progetto originario.

L’idea di riportare alla luce la muratura ripristinandola, diventa immediatamente la nuova sfida dei progettisti, che riescono a convincere la committenza a lasciarla a vista e dare così una svolta inaspettata al progetto. Assunta Volpe e Andrea Scorrano descrivono così il loro intervento: «Il progetto ha l’intento di razionalizzare l’impianto planimetrico esistente e di renderlo funzionale e fruibile, attraverso la netta separazione “longitudinale” di zona giorno e zona notte; inoltre è mosso fortemente dalla volontà di riscoprire l’architettura celata dai ripetuti interventi che si sono susseguiti negli anni, effettuati non sulla base di un progetto unitario, ma dettati dalle necessità del momento».

«Il progetto “From office to Home” nasce da un’attenta analisi tecnico-distributiva e da ispirazioni di contesto, nonché dai vincoli e dalle potenzialità di un appartamento situato al terzo piano di un palazzetto storico degli anni Quaranta». I progettisti Assunta Volpe e Andrea Scorrano
L’appartamento, infatti, nato con vocazione residenziale, era stato trasformato in ufficio e aveva subito diversi rimaneggiamenti negli anni. L’intento dei progettisti è quello di ridare valore all’involucro originario, reinterpretandolo.

Da abitazione a uffici e di nuovo ad abitazione. Il progetto cerca di razionalizzare l’impianto planimetrico esistente e di renderlo funzionale e fruibile, attraverso la netta separazione di zona giorno e zona notte delimitate dal muro di spina.
La cucina viene spostata sul lato luminoso della casa, centrale rispetto alla zona giorno.
Nessun intervento strutturale di rilievo, mentre la trasformazione si concentra sui materiali: impossibile mantenere le originali marmette in cemento venute alla luce al di sotto della pavimentazione, perché troppo ammalorate: il massetto molto disgregato è stato rimosso e sostituito con un massetto alleggerito strutturale armato sul quale è stato posato il nuovo pavimento.
La distrubuzione dei 105 metri quadrati di alloggio subisce l’unfluenza del muro di spina che crea naturalmente una netta separazione longitudinale, sfruttata dai progettisti per separare la zona giorno dalla zona notte.

Tale divisione approfitta l’orientamento solare, sia estivo che invernale, e consente di posizionare gli spazi di condivisione nell’area con la maggiore illuminazione naturale, e allo stesso tempo di razionalizzare gli impianti situandoli in un controsoffitto che attraversa l’appartamento in senso trasversale, dalla cucina in direzione dei bagni.

In questo modo, stanze da letto e servizi vengono collocati nella parte meno luminosa e più silenziosa della casa, mentre la zona giorno può godere della maggiore luminosità: il soggiorno e la sala da pranzo possono godere della vista mare e dell’accesso al balcone, e la cucina diventa una stanza nella stanza aperta ma schermata.

Se la parete in muratura a vista traccia la linea di separazione funzionale, diventa indiscussa protagonista della zona giorno e generatrice delle scelte materiche dei progettisti: «La decisione di lasciare “faccia vista” la vecchia muratura con gli archi ha dato all’abitazione l’opportunità di riappropriarsi di un allure d’altri tempi e di assumere una forte riconoscibilità; i ricorsi in mattoni restituiscono una superficie vibrante, di luci e ombre, che caratterizza la zona giorno, e diventano il fil rouge nella progettazione della stanza-cucina, delle porte in ferro e vetro, delle pavimentazioni, della carta da parati e di tutti gli elementi che concorrono a definire lo spazio casa».

Quando la sinergia è vincente

Le superfici del bagno sono rivestite con piastrelle prodotte da Ceramica Sant’Agostino. La collezione “Shadebox”, è una “collezione-contenitore” dove la palette dei colori proposta confluisce nel sistema cromatico denominato “Shade”, su cui Ceramica Sant’Agostino sviluppa – in gres porcellanato e in bicottura a pasta bianca – materie diverse, ma potenzialmente abbinabili, all’interno di un unico progetto architettonico che gioca con le essenze (legno, resina, maiolica), le superfici (satinata, strutturata, lucida), le soluzioni d’uso (in ambienti diversi come il living, la cucina, il bagno) e gli ambiti applicativi (residenziale e commerciale, privato e pubblico), pur mantenendo costante l’uniformità e la continuità delle nuances. Stefano Storchi, responsabile marketing dell’azienda descrive così il prodotto: «La collezione “Shade” gestisce il concetto di palette cromatica a degradare». Le leve di marketing della collezione sono per Storchi evidenti: «Il rivenditore può contare su uno strumento che facilita la scelta al cliente, perchè coniuga proposte di abbinamento di sicuro effetto».
Il distributore
Quando la messa in mostra conta

Gruppo E inizia la sua storia oltre trent’anni fa con la nascita del primo punto vendita a cui se ne aggiungono presto altri quattro. Riferimento a Roma e nel Lazio nel settore della vendita al dettaglio e all’ingrosso di materiale edile, prosegue dal 2014 con acquisizioni importanti, tra cui l’impresa abruzzese Globo Ceramiche, azienda composta da cinque filiali distribuite tra le provincie di L’Aquila e Chieti, attiva sul mercato da quarant’anni. Realtà di spicco nel Centro-Sud Italia, Globo Ceramiche ha diversi punti di forza: la cura e attenzione per gli spazi dedicati all’esposizione, la vasta scelta dei prodotti trattati, la professionalità del personale di vendita costantemente impegnato in corsi di formazione e l’assistenza progettazione e post-vendita. Fondamentale la sala conferenze attrezzata per meeting e formazioni, e la sala espositiva, dove trovano spazio i prodotti con le proposte di arredamento. Per creare l’ambiente idoneo ad accogliere l’attività del professionista, in tutti i punti vendita sarà allestito a breve un corner dotato di strumenti multimediali per simulazioni grafiche tridimensionali, dotato di piani di appoggio e contenitori di materiali vari, il cui comune denominatore sarà rappresentato da caratteristiche innovative e da alto valore estetico.
L’imprenditore edile
La passione per il restauro

Franco Parone è il geometra, cotitolare di Domus Restauri S.r.l., che si è occupato dei lavori nell’appartamento di Pescara. La sua esperienza incomincia circa quarant’anni fa, muovendosi sul territorio abruzzese, soprattutto tra le provincie di Chieti e Pescara, dove è diventato un referente per i lavori di recupero conservativo dell’architettura locale. Le numerose commesse, soprattutto da parte di clienti stranieri, gli hanno offerto l’opportunità di specilizzarsi nel restauro di architettura tradizionale, sia rurale che cittadina, una passione che è diventata il segno distintivo dell’impresa famigliare con sei dipendenti. Nell’appartamento di Pescara i lavori sono stati di normale amministrazione, con attenzione particolare per il muro di spina in mattoni pieni: «Il ripristino della muratura ha avuto la sua difficoltà: una volta tolto l’intonaco ci siamo ritrovati con diverse parti compromesse dalle vecchie tracce degli impianti. È stato necessario sostituire più di seicento mattoni con altrettanti recuperati!» spiega il geometra Parone. Ripristinate le fughe e puliti a mano i mattoni, la muratura è stata protetta con un idro-oleorepellente per mantenerne l’aspetto più naturale possibile.



