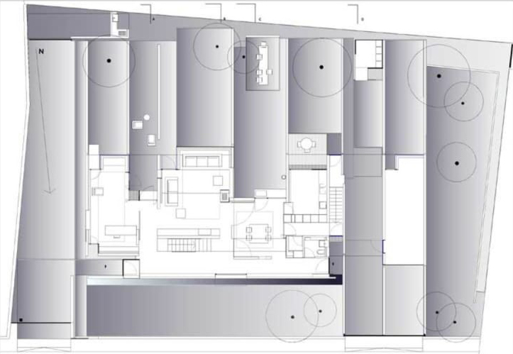
Casa Branca a Buscate (Mi) rappresenta una nuova esperienza abitativa e domestica originata dalla divisione binaria del lotto che la ospita, di 900 mq, in “righe” parallele tra loro e perpendicolari all’asse della via cittadina. Progettata dagli architetti Roberto Mascazzini e Nicola Zema (co-progettista), prevede una superficie abitabile di 315 mq e un volume: 1.000 mc.

L’idea “binaria” in cui si suddivide l’intera area di progetto crea l’illusione di una dilatazione spaziale del giardino della villa, conferendo energia al concetto di base di una partizione in setti cementizi che vanno a organizzare gli spazi domestici, insinuandosi sapientemente nel progetto. I percorsi interni orizzontali e verticali si disegnano quindi con pochissime partizioni interne in coerenza con l’idea iniziale.
L’affaccio dell’abitazione sullo stretto corridoio verde che separa l’ingresso dalla strada, rimane per lo più nascosto da un forte muro di confine e si chiude rispettosamente sul privato della famiglia.
I sapienti accostamenti dei materiali come le lastre di piombo, il vetro e i pannelli di legno a conferiscono movimento ai volumi che compongono la facciata sul giardino retrostante, senza contraddire la nitida e pura muratura bianca.
La domesticità di Casa Branca si esprime poi tutta nell’elegante svolgimento degli scorci interni, un contesto di protetto e silenzioso privato nel quale gli ambienti ampi, luminosi e dallo stile minimalista si sviluppano senza soluzione di continuità.
Arch. Nicola Zema | Co-progettista
«Avere l’opportunità di affrontare esperienze progettuali come questa, fatta con un collega di grandi capacità come Roberto Mascazzini, ha per me un valore inestimabile e mi insegna, ogni volta, ad aprire la mente, ad allenarla nella rielaborazione di concetti base come, in questo caso, quello dell’abitare; è il modus operandi stesso del progettista, infatti, che deve partire dalla ricerca del significato prima ancora di arrivare al gesto architettonico. Si possono così concepire progetti di indubbia importanza, come capita nella mia carriera grazie al retail e a luxury brand, che sono esperienze impagabili ma non superiori a quella di riuscire a dare un contributo progettuale anche allo scrigno del quotidiano, al focolare domestico, al luogo per eccellenza: la casa». (vb)









